CATEGORY
Houses, Sustainability
LOCATION
Argentona, Spain
LEAD ARCHITECTS
Marc Camallonga, Jordi Pagès, Pasqual Bendicho
MANUFACTURERS
AutoDesk, Lunawood, Cortizo, Persiana Barcelona, Tallfusta, Pavifort, Ubasart
ENGINEERING
Eva Crespo, Santi Velasco
STRUCTURE
Juan Pablo Adalia
DEO
Joel Vives
Text description provided by architect.
BE house was thought for an entrepreneurial family of four, on a site plot of 370sqm, with optimal orientation and surrounded by small houses in Argentona, a small city situated 30min by car from Barcelona.
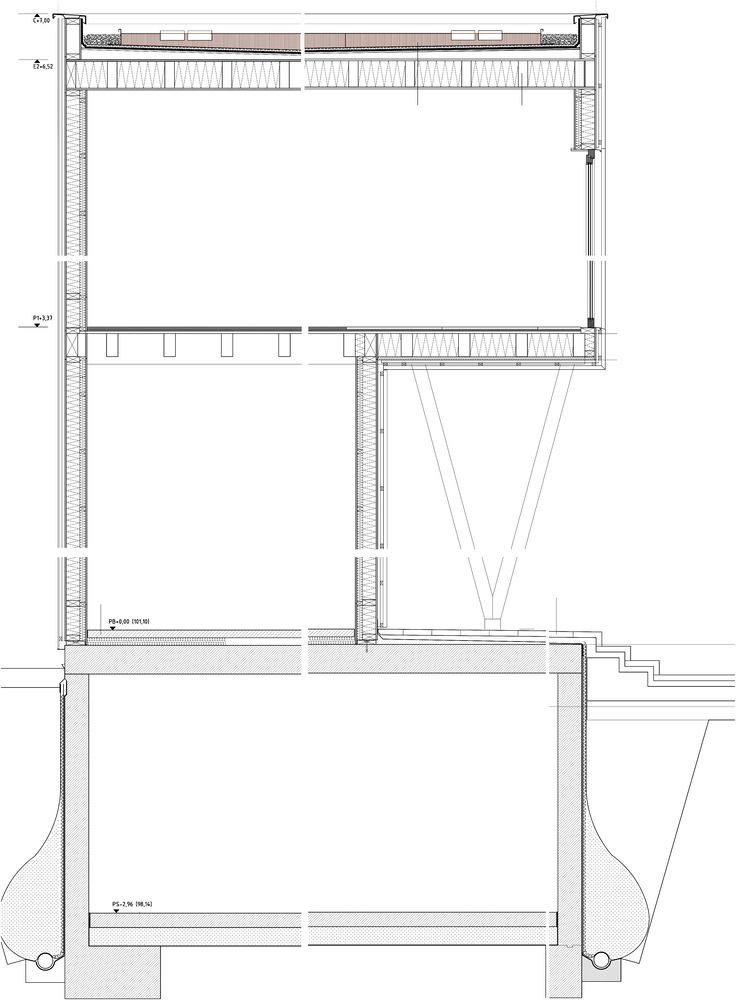
The house was designed inspired by Passivhaus principles. It is compact, well orientated, with a hermetic well isolated façade to avoid leaks.
The concrete floor on the ground floor provides the needed inertia. It becomes a low heating and cooling demand building.
The ground and first floors are built with a dry industrialized system. The frame has wooden slabs, beams, and a façade finished with Thermo-treated pine wood strips.
The plinth of the house, in contact with the ground, is made out of concrete.
A hot galvanized steel tube profile defines the porch.
A slim structure generates an intermediate space between the inside and the outside.
Wooden rolled shooters protect the house from sun radiation and allow cross ventilation. Each material is used where it is most efficient.
The vegetation in the roof protects against exposure to direct sunlight to avoid overheating.
A 12kWpic photovoltaic plant placed on the roof produces the energy that the house needs. Accumulation batteries allow the house to be unplugged from the electricity grid.




















