ARCHITECTS
Somia Design
LOCATION
Denpasar Barat, Indonesia
CATEGORY
Houses
COUNTRY
Indonesia
CITY
Denpasar Barat
OTHER PARTICIPANTS
Putri Yehkwah
MANUFACTURERS
Toto, Modena, Niro Portinos Granite, PT. Alexindo, Steinzeug Mozaic
LEAD ARCHITECTS
Andika Surya Pramana
Text description provided by architect.
Sits on a 352 square meters land, Misol House was initially designed to adopt American classical architectural style. The owner, a pilot by profession, may be inspired by the houses in the countries that he has visited.
As a consultant, the Architect has a moral responsibility to advise the Client that the American classical architectural style is unsuitable for Indonesia’s tropical climate.
Instead, Somia Design Studio offers the idea of a tropical urban house as an ideal concept to respond to the tropical climate conditions in Bali.
Challenges on the tight land area and the dense neighborhood are responded by balancing the ratio between the built-up areas and the open space areas.
Open space provision aims to maximally absorb rainwater as well as maximizing reforestation areas to reduce harmful carbon in the city. It could also reduce the surrounding temperature and increase the percentage of the urban void.
The allocation of the built area and open space ratio is made 50/50 to avoid a solid impression on the building mass.
The process of synchronization between Client’s needs and desires was addressed by exchanging thoughts intensively between the Client and the Architect to sort out the suitable and ideal design to be applied.
The tropical urban house concept applied to Misol House creates many voids within the house, allowing penetration of sunlight as the natural source of lighting and optimizing natural ventilation.
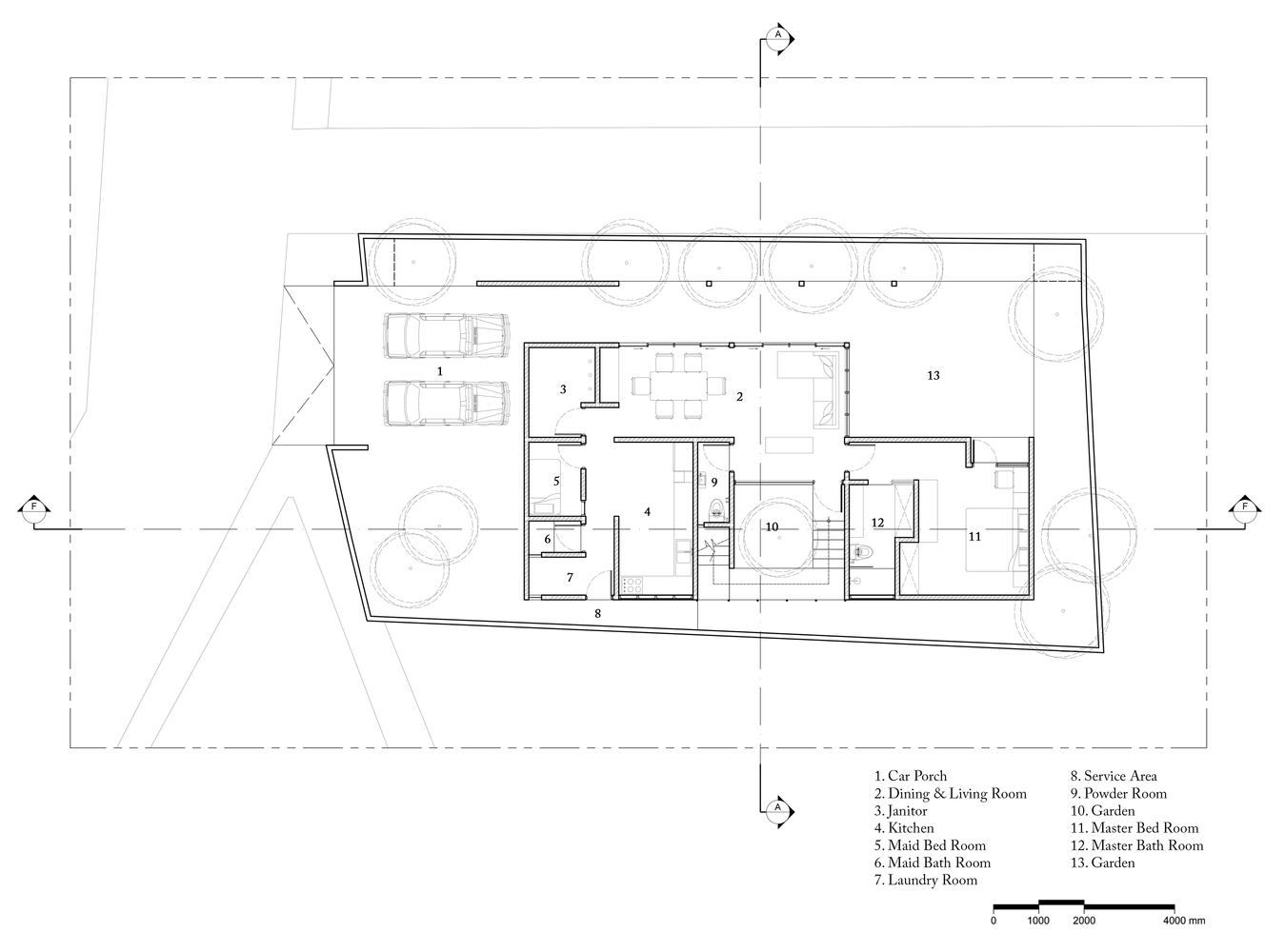
The living room and dining room, located on the ground floor, are designed with full height glass walls to optimize natural lighting. The use of glass wall makes the architecture alive by exposing the activities inside the house.
The Client initially wanted the whole house to be in white color to give the impression of cleanliness. The Architect offers the ideas of applying two colors concept to the building, which are white and grey.
This way the Client’s desire on achieving a clean, simple, quiet, and bright impression can still be psychologically achieved without having the house to appear monotonous.
The house is also equipped with a wet kitchen that is separated from the dining room, large enough to accommodate heavy cooking activities that the Client likes to do on daily basis. A separate kitchen space also aims to avoid contamination to other rooms from the odor generated from the cooking activities.
The layout of the house is designed based on the Client’s specific brief. Master bedroom with attached master bathroom is located on the ground floor, while the two other bedrooms are located on the upper floor with a shared bathroom.
The bedrooms are designed not too large as the users tend to have high mobility, and the bedrooms are mainly used for resting and sleeping activities only. In addition, by designing the bedrooms that are not too large, the residents are expected to spend more time in the living room together with other family members.
A green pocket with a medium size tree is designed between the master bathroom and the kitchen, providing a green element in the middle of the house. The existence of this green pocket would add a peaceful and beautiful impression to the house.
Balconies are provided on the upper story, which is designed as such that the privacy of the residents is preserved but at the same time the visual connection with the outside environment is not cut off.
Trees are planted on the balconies for cool ambiance. A roof with void covering the balconies is provided to preserve the privacy of the balconies and shelter the balconies from the weather, but at the same time allows for plants to grow.
The void on the roof is designed as such that the person standing on the balconies will not be seen by the neighbors on the same floor level.
A combination of Client’s needs, practicality, and artistic values, Misol House is not only comfortable and compact but also a house that spoils the eyes and mind of the residents to ease the stress from the urban hustle and bustle.

















