ARCHITECTS
Mfrmgr Architekci
LOCATION
Poland
CATEGORY
Houses
AREA
228.0 m2
PROJECT YEAR
2018
PHOTOGRAPHS
Maciej Jeżyk / ONI Studio
MANUFACTURERS
Röben, Amberline, JANMAR
LEAD ARCHITECTS
Marta Frejda , Michał Gratkowski
CONSTRUCTION ENGINEER
Fc-projekt
MFRMGR TEAM
Marta Frejda, Michał Gratkowski, Waldemar Nowicki, Klaudia Zyza, Jarosław Urbański
CLIENT
Private
Text description provided by architect.
The object of the project was the last segment of a row of terrace houses.
Its new owners faced the typical problems of buildings from this period in Poland:
bad building materials, elevated ground floor, unpractical layout of inner walls.
The effect was a house closed to the outside world full of uncomfortable separate and dim rooms.
A small add-on included a garage, a living room and a terrace above.
The whole plot was small and exposed from all around – the house had actually no garden.
Our task was to create a new functional layout inside and to completely remodel the add-on inside its existing borders.
In our project we tried to make some frames which could be used as support to plants - we wanted to enlarge the existing garden, which part and continuation would be walls and terrace of the building.
Thanks to this we provided some leisure area outside – the terrace on the first floor accessible from the living room by new outside stairs.
The outside brick walls cover it from the sight of the passers-by, whereas openings and translucent parts let the sunlight inside.
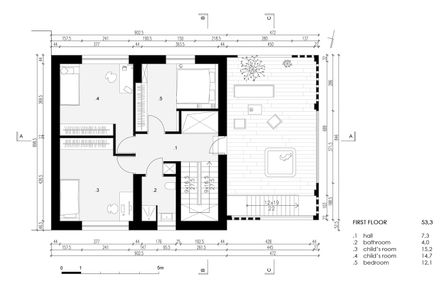
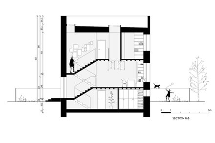
The interior was adapted to the needs of the modern, four-people family – on the ground floor we created an open-space living area, designed three bedrooms on the first floor and some utility area in the basement.
Skylights in the roof enlighten the lower floors thanks to some openings in the slabs.






























































