AREA
257 m²
YEAR
2020
PHOTOGRAPHS
Beijing Ruijing Photography
MANUFACTURERS
Chinalco, S_Beijing
ARCHITECTURAL DESIGN & RENDER
Lauren. L
ARCHITECT IN CHARGE
Yoshihiro Kamiyama
CONSTRUCTION
A+A workshop
ARCHITECTURAL DESIGN & DIGITAL MODEL, RENDER
Colin. L
ARCHITECTS
KLC
LOCATION
Beijing, China
CATEGORY
Coffee Shop, Mixed Use Architecture, Renovation
Text description provided by architect.
The site is located in a special border area between the city center and the suburbs, around the 5th ring in Beijing, China. It’s also an industrial block which has plenty of red brick warehouses that supported the Spinning Era in the 1960s.
It is undergoing various renovations to a new commercial area, and our project is to renovate one of them.
The clients already own a relatively small shop in the city center, which sells beverages made only from organic plants.
They are undergoing an extension of their business which not only sells beverages but every prospect of healthy food, so they have bought one of the red brick warehouses as the main studio+food bar, and have asked us to design it.
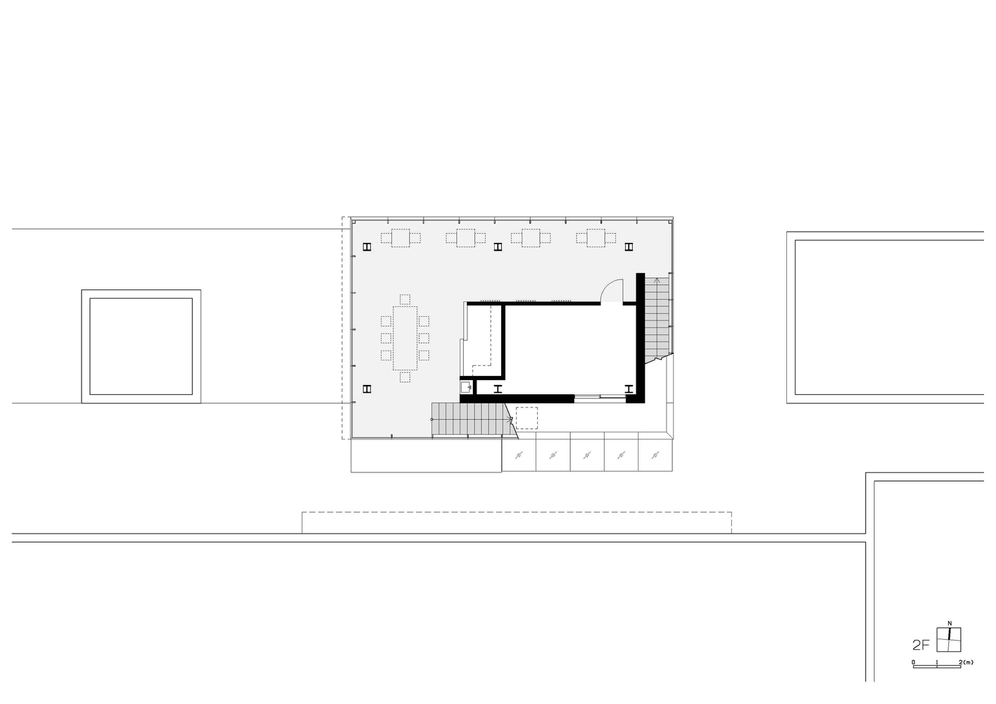
A two storey building was requested, including a food lab, dining space, sales space, workshop area, a gallery for the artists working in the team, office zone, and a greenhouse.
Inspired by the clients’ strong interests in natural ecosystems, including lots of plants in the greenhouse, we have tried to actively introduce the outdoor space into the indoor space.
As part of a retail area, it’s important to display a popular and busy atmosphere inside to be seen from the outside to attract more guests.
Therefore we have designed our project according to the 8 rules below. All of these rules have a multiple perspective, so that the resulting space is as emotional as possible.
Concept: Coexist
1. Approach from outside can be visually recognized and should be three dimensional.
2. You can see the outside from the inside, and the viewpoint varies.
3. Turning a low-density and elongated circulation to a space
4. Designing a continuous three-dimensional space without partitions or doors, and deciding the purpose of each place in relation to the outside.
5. Passive Design comes first in the building environment consideration, mechanical add-up becomes optional.
6. A Hybrid Structure system is not only to emphasize the mechanical tension ,but also to express the flow of force
7. The building material shall be convenient to get for the local construction technology and should be able to connect the past time to the future.
8. Artefact shall be created across a meaning of both the product’s and architectural design.
Function
With the consideration of the layout for various functions, the optimized spatial quality is designed to coordinate with the exterior environment. The lab and retail space, which are expected to attract daily customers, are allocated in the north side of the 1st floor plan.
They are visually recognized from either the street or the interior. The warm-house, whose sunlight exposure and soil management need to be seriously thought of, is allocated in the south side in order to gain enough sunlight.
The art pieces displayed in the gallery are placed with the glass next to the street on the northside of the 2nd floor, avoiding direct sunlight. And on the southwest side of the 2nd floor, a workshop space for private gathering is set.
Customer Traffic Flow Line
The main interior traffic flow line is designed like a continuous stroke in calligraphy that links all functional space as a whole. Often the traffic flow line is compact, and connects space with a minimal distance so that the maximum floor area is used as commercial space.
While in this case, the customer flow line is extended between various types of space, assuring a most diverse experience of space in a limited shop floor area.
Space
There is no door designed in the interior space, in the attempt of connecting the 3 floors space with smell and sound. No strict rules for the usage of the space, leaving the space flexible and vague. Customers can even sit in the middle of the traffic flow line.
Meanwhile, the natural light can be felt from any direction inside the building, resulting in 3 dimension spiral-like space that grows upward like a living plant.
A building in sub-urban area
The building is also an experiment that is trying to study a mixed publicity and privacy condition.
The customer traffic flow is blended from exterior to interior space, bringing the transforming resolution between publicity and privacy.
Follow the up-lifting staircase and walk to the terrace on top, the view of skyscrapers construct the environmental urban sense for the sub-urban area building.
Through inserting a different element, ie. the nature out of the dense urban environment, it is believed that individual private spiritual motion gains the opportunity to be freed and released.
Tokyo-Beijing
The design and construction supervision is accomplished fully online.
As a result of the corona pandemic, the regular site visits from Tokyo are all cancelled. No site confirmation can be made before and after the completion of the building.
Even though there are multiple elements that postpone the construction, thanks to the clients’ efforts and all digital communication technology, the construction ends up smoothly and now is already open for business.






























