ARCHITECTS IN CHARGE
Waranyu Makarabhirom, Sonthad Srisang
YEAR
2020
CLIENT
Pharmahof Company Ltd
MANUFACTURERS
AutoDesk, Forbo Flooring Systems, Lamptitude, Lightup Design, SYS, Trimble Navigation, Trusol
STRUCTURAL ENGINEER
Montien Keawkon
TRANSLATION
Gam Tithinun
COUNTRY
Thailand
CATEGORY
Mixed Use Architecture, Commercial, Residential
LOCATION
Bangkok Noi, Thailand
Text description provided by architect.
FH Office is a mixed-use development project.
With an area of 2,000 square metres, this 7-storey high building consists of both commercial and residential space and is located on the west side of Bangkok.
The concept of FH Office took shape when we had a conversation with the owner of the project and found his perspective towards physical well-being very engaging: "True, we are a pharmaceutical company, but we never want people to become ill.
We also provide other dietary supplements to support healthy living. We as an administrative team also encourage healthy lifestyle among our employees and lead by example by using stairs instead of elevators, for instance."
This soon became the foundation of our design concept: dualism.
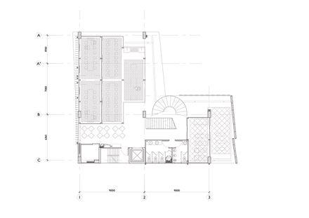
Structure — we use two main approaches: post-tension slab, and post and beam. Post-tension slab loosely holds a majority of the building parts together, while post and beam construction makes way for a modular design system (3x3x3 in size) which constitutes the main interior space.
Interior vs Exterior — As the company relies on constant collaboration among different departments, the common areas are needed to enhance workflow.
Both the owner and designers agree, too, that these shared spaces should have good ventilation and are open to natural light.
From these requirements, we have designed different working spaces, each of which is linked by a common area that serves different purposes.
There are many advantages to this design. It considerably reduces energy use since the lighting and a/c systems are independently controlled in each department.
It also increases semi-outdoor space and therefore invites more natural light into the working area.
Perhaps most importantly, this design can help reduce infections from airborne diseases. (This design project was carried out before the Covid-19 pandemic.)
Staircases— We brought an aesthetic look to our staircase design to encourage people to use them instead of elevators. This will in turn benefit their health.
Shape and Form — FH Office is located in a densely populated residential area, where row houses make up a majority of the buildings.
We then see a possibility to add this row-house mood into our design, so both the physical characteristics and visual portrayal create a juxtaposition between the building and its surrounding.
Perhaps most importantly, this design can help reduce infections fromairborne diseases. (This design project was carried out before the Covid-19 pandemic.)
Perhaps most importantly, this design can help reduce infectionSome of the common areas may, for instance, give birth to a unique perspective as if they were connected to other row houses, while multiple cubic forms may appear in contrast to the rectangular buildings nearby. Likewise, the spiral staircases further emphasize a sense of duality once perceived against the backdrop of straight lines.s fromairborne diseases. (This design project was carried out before the Covid-19 pandemic.)

























