
Kita Aoyama Apartments
LANDSCAPE
Landscape Plus Inc
DESIGN TEAM
RIA, Shimizu Corporation
COLLABORATORS
design index, Phenomenon Lighting Design Office
YEAR
2020
The new scheme is located in the upmarket Kita Aoyama district of the Japanese capital. The design takes its inspiration from a woodblock print ‘Cushion pine at Aoyama’ by the great Japanese artist Katsushika Hokusai.
The print was created when the area was a green landscape, traditionally occupied by the Samurai.
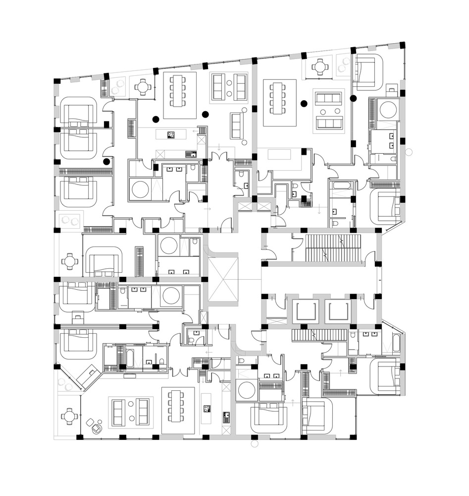
The seven-storey development of 15 apartments for NTT Urban Development, responds to its immediate built context in terms of scale and massing, while offering a unique addition to the location.
The densely planted, fair-faced concrete and flamed-granite ziggurat structure references the spirit of the Hokusai print, but also creates a green stepping stone within one of the great megacities of the world.
This project encapsulates a holistic approach through its architecture and interior design, linked by the spaces running between the various elements of the development, internally and externally.
The result is an overall spatial experience, creating a continuous journey from the street to the home through a hierarchy of spaces and layers.
The apartments are unusually large for Tokyo. Recognising the cultural sensitivities in Japanese culture, the design provides public and private circulation routes and zones within apartments.
The building responds to its immediate built context in terms of scale and massing, while offering a unique addition to the location.
Both the living spaces and bedrooms offer timber-framed views of the external, planted terraces, the generosity of which is a rare amenity in such a densely populated city.
























