OURHOUSEWANDAL
ARCHITECTS
Design+Architecture, N Veenstra
LEAD ARCHITECTS
Colin Strydom
CONTRACTOR
Acute Builders Pty Ltd
STRUCTURAL ENGINEER
McMurtries Consulting Engineers
AREA
150 m²
MANUFACTURERS
Bluescope, James Hardie, Laminex, Bradnams
YEAR
2020
LOCATION
Rockhampton, Australia
CATEGORY
Houses, Sustainability & Green Design
Text description provided by architect.
Designed with sustainability, low maintenance and natural ventilation in mind, OURHOUSEWANDAL is a low-budget, family home with a difference.
Having traveled extensively and become accustomed to using minimal space wisely, the young family client wanted their first family home to reflect their love of the great outdoors and have a natural, rural feel, despite being located in a well-established Rockhampton suburb.
Street appeal and uninterrupted views of their expansive backyard and beyond was something they also desired for the property, which influenced the home’s shallow plan, position on the long arrow block, and the use of bold geometric shapes.
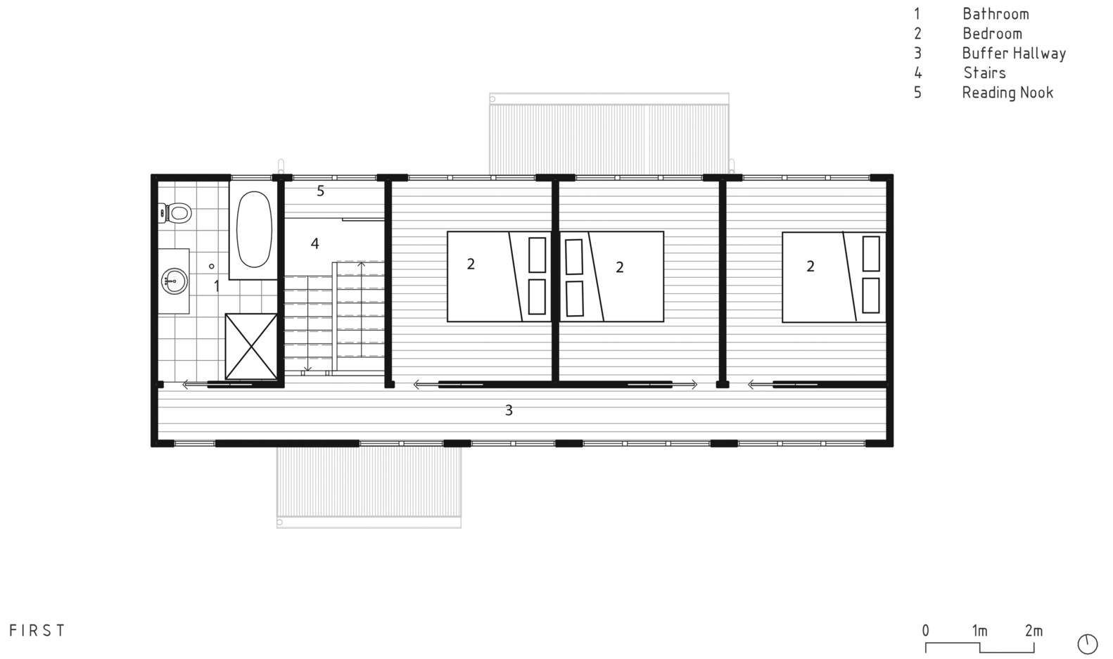
Open plan living spaces with large floor-to-ceiling windows and doors are central to the sustainable design of this slightly elevated two-story home in order to capitalise on natural light and cross ventilation.
The home’s large overhanging eaves, back deck, and strategic rear-facing orientation also help to minimise its reliance on artificial heating and cooling while making the most of its garden view.
All material choices were shaped by three criteria: environmental sustainability, low maintenance, and cost-effectiveness, hence the use of zinc cladding on the exterior walls and room as well as fibre cement on the lower level.
Since the client’s budget was limited, standard materials (i.e., sliding doors, windows, and kitchen) were utilised in a thoughtful, creative way that added that contributed to the natural, modern, open-plan design - giving a luxe feel for less.
Arriving at the final design was a collaborative process between the builder, architect, and the client, who as an engineer, was highly involved in the project and had a large impact on the design.
This close working relationship enabled the overall cost of the project to be kept tight and within the client’s low budget.
Environmental sustainability was a key component of the OURHOUSEWANDAL project brief as the young family client requested that their home complement their existing sustainable lifestyle.
To subsequently minimise its environmental impact, the home is elevated to provide maximum ventilation and orientated to take advantage of the natural light and incredible cross breezes that the location affords.
Open plan living spaces with large floor-to-ceiling windows and doors combined with large overhanging eaves also help to minimise its reliance on artificial heating and cooling.
Low cost, sustainable materials such as zinc cladding on the exterior walls and roof were also used where possible to reduce the home’s environmental footprint, minimise ongoing maintenance requirements and maximise the overall livability for its inhabitants.





















