
University of Western Australia EZONE
AREA
9656 m²
CATEGORY
University
LOCATION
Crawley, Australia
Text description provided by architect.
EZONE UWA Student Hub is a shared precinct for the EMS community and their partners, providing a new western gateway into the University of Western Australia Crawley Campus.
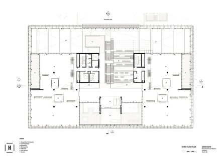
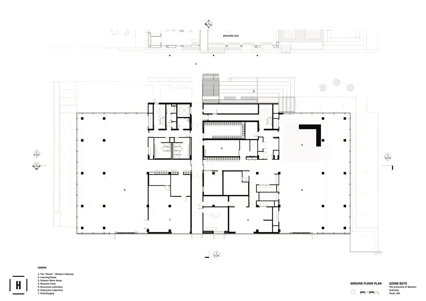
Three engineering labs, higher degree workspaces, and 14 flexible learning studios are supported by a large ‘learning steps’ meeting place, cafe, and beautiful outdoor spaces for both socialising and learning.
With space for students, alumni, researchers, and industry partners to come together and thrive, EZONE was built for the connection of people and the exchange of ideas.
Not one to let a learning opportunity pass by, UWA encouraged and facilitated student involvement during the build. A viewing platform was installed and site tours were coordinated to give students and staff the opportunity to learn about the project’s journey.
Extending the relationship that the campus has with its celebrated landscape setting, EZONE brings planting into and up the building while showcasing cutting edge internal research activities to the wider community.
The design team has blurred the traditional boundaries between building and garden, inside and outside spaces, for a learning environment that encourages interaction and collaboration.
Innovative sustainability measures were integral to the design, including PV cell glass skylights, wind turbine, and the ‘veil’ façade that both contains and reveals the new ‘living building’ - mitigating glare, heat, and filtering sunlight with petals fixed at different angles to suit their orientation.
The veil creates a unique identity for EZONE’s exterior, designed to represent a six-pointed sun symbol – one of UWA’s ‘100 Treasures’, cast into many of the concrete buildings on campus.
The geometric, repeating nature of the veil creates a striking façade with a nod to mathematics and engineering while filtering views into surrounding tree canopies.
Hassell Principal, David Gulland, said that working on the EZONE hub was a rewarding experience for the whole design team. “Many of us graduated from UWA, so there is definitely a connection to the buildings and landscape that informed the design process,” David said.
“It was important that the building itself could be a tool for learning and research – for example, access to transparent, ‘real’ plant room spaces, and informal breakout spaces linked to specialist laboratories and learning studios.”
“The combination of the garden campus setting and the university as a place to meet, challenge, and exchange ideas feels as if it has coalesced into an outward-looking, international facility with a strong local identity,” he said.


















