ENGINEERING
Construtora Ciampolini Rocco
CATEGORY
Houses, House Interiors
YEAR
2020
LEAD ARCHITECT
Giancarlo Rocco
LANDSCAPE
Mercado Verde
AREA
1158 m²
DESIGN TEAM
Giancarlo Rocco, Luciano Ciampolini Rocco, Ana Lucia Pasquali Rocco, Adriana Gomes Garcia
The plot is located on the banks of the Itupararanga dam and the house was implanted in such a way as to explore, to the maximum, it’s beautiful views.
The extensive program was accommodated in 2 main volumes: one for the intimate areas and the other for the social and service ones.
On the axis of the two volumes is the main entrance to the residence.
The transparency of the two aligned facades allows the view of the dam from its arrival.
On the opposite side of the entrance was positioned a water mirror. It reflects the sunlight and contributes to the control of temperature and humidity.
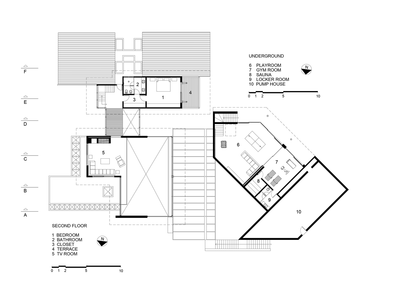
In the intimate area block, five bedrooms occupy the ground floor, three of which open onto a generous terrace facing the dam.
On the upper floor there is, on one side, the master suite with a private terrace and on the other a family room.
Only one staircase serves the two blocks and the connection between them is made by a walkway that crosses the central Hall.
On the main volume, living and dining rooms have double height and are separated from the varanda by a set of sliding doors that opens completely and allows a total integration between the spaces.
The glass-covered varanda is the central part of the residence, connecting interior and exterior.
The pool was lowered 50 cm in relation to the ground floor to allow a better view of the dam.
A leisure area, with a games room, sauna and fitness room located on the lower part of the plot completes the program.











































