Mountain Retreat
CONTRACTORS
RA Nelson
CIVIL ENGINEER/SHORING DESIGN
RJ Engineering & Consulting Inc.
STRUCTURAL ENGINEER
KL&A
SURVEYOR
Peak Surveying Inc.
SPEC WRITER
Rachel A Dugstad
POOL CONSULTANT
Colorado Poolscapes
MANUFACTURERS
Andersen Windows & Doors, Benjamin Moore, REHAU, Arrigoni, Villarreal Rasmussen Cabinet Makers
LANDSCAPE ARCHITECT
Design Workshop
LAND PLANNER
Davis-Horn Inc.
MEP ENGINEER
BG Buildingworks
LIGHTING DESIGN
Mitchell B. Kohn Lighting Design
INTERIOR DESIGN
Rowland + Broughton, Leslie Cope, Carrera Shea
OWNER’S REPRESENTATION
Seiler Consulting LTD.
SHORING CONSULTANT
B&Y Drilling inc
BUILDING TECHNOLOGY
Paragon
PROJECT MANAGER
Will Otte, Sara Upton
ARCHITECT
Sarah Broughton, John Rowland
CIVIL
Roaring Fork Engineering
WATERPROOFING CONSULTING
WJE
PROJECT ARCHITECT
Mark Hardeman, Rahul Mohare
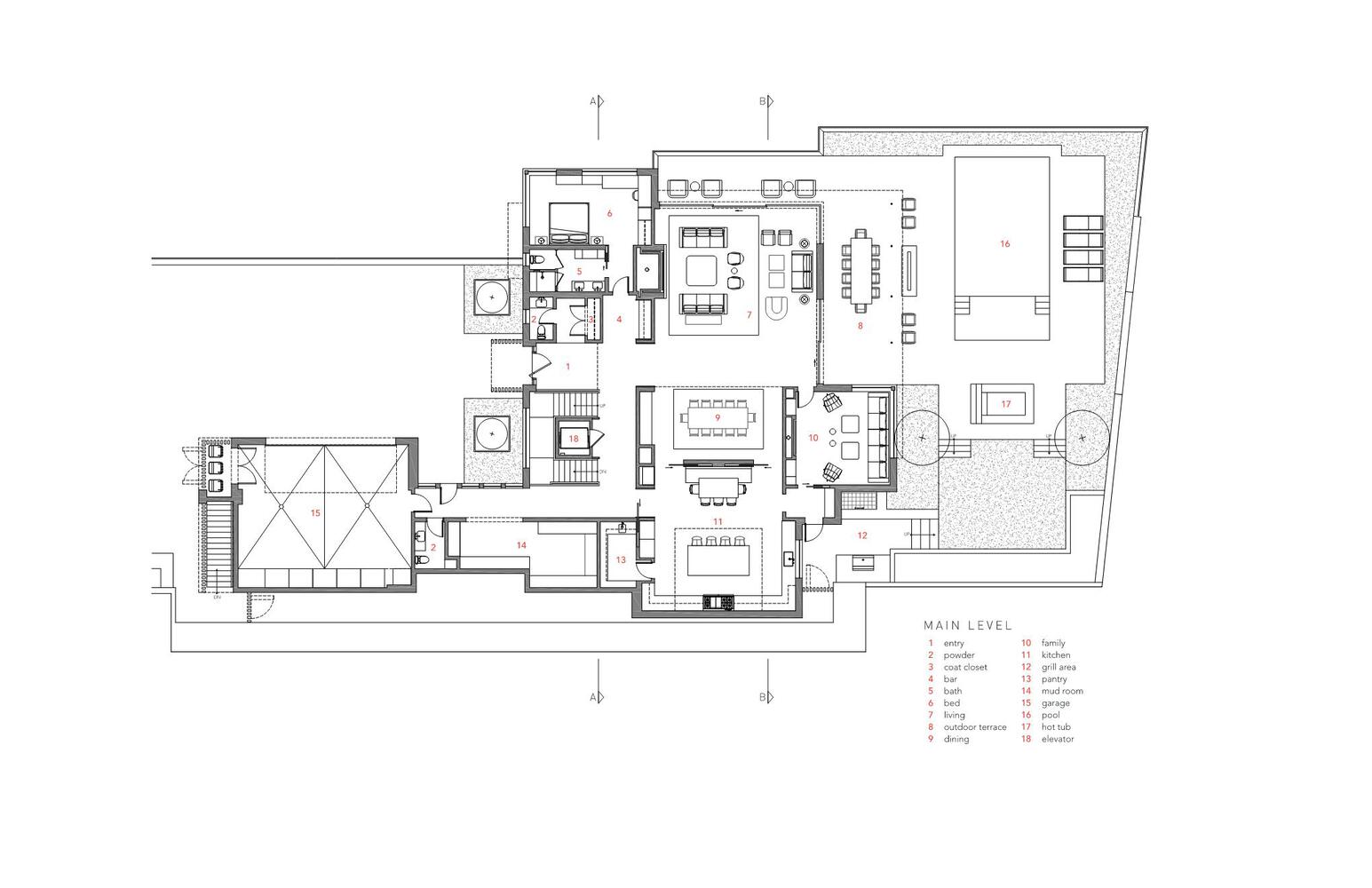
This organic, lodge-style home in the Five Trees neighborhood at the base of Aspen Highlands ski area is a multi-generational home that facilitates a contemporary lifestyle.
The design of the tri-level, 10,750 square foot structure pushed the national park influenced neighborhood design guidelines while incorporating modern features.
On a heavily wooded lot on a steep mountain slope and amid a forest of aspen and fir trees, the design team carved the home into the hillside, effectively creating a “bench” by building a retaining wall along the south elevation.
A flat landing carved into the hill allowed for a pool terrace off the living room as well as a generous motor court.
Addressing the need to accommodate the activities of multiple families and generations, the flow was critical to the design.
Below ten-foot ceilings (intentionally kept low to encourage a feeling of intimacy), large gathering and seating areas used for entertaining were organized so that they could be closed off from private spaces.
A game room, gym, massage room, wine room, and back of the house support were located on the lower level. An elevator with open stairs connects all three levels.
Generous natural light streams freely throughout the home through view-centric corner windows. Floor-to-ceiling glass windows and sliding doors were purposefully placed, creating the effect of a glass box with a green roof and sweeping views.
A 13’-6” by 16’-6” skylight was installed in the kitchen. Clean visual connections were established between main-level public spaces, as well as to the extensive decks and terraces, the pool and spa, and the motor court.
The interior layout provides visual connections between main-level public spaces and includes connections to outdoor living spaces and views to a trio of local valleys. Five equal bedroom suites with consistent features and plenty of natural light allow for generous and flexible sleeping arrangements.
Primary materials throughout include oak Havana flooring with a soap finish, Level 5 painted walls, stone tile, and custom woodwork including a rift white oak ceiling.
Exterior materials were informed by the textural nature of the surrounding mountains, as well as iconic National Park lodges. A combination of natural cleft cut and sawn cut sandstone and stone caps, along with 1.5-inch thick stained wood siding, is sheltered by a standing seam metal roof.
Additional materials and elements include a wood slat screen at the entry, heavy timber rafter tails, steel lintels, and an ecologically beneficial green roof over the living room.
“It was the most enjoyable project we’ve done and we’ve done a lot. There was never a problem you couldn’t solve or a challenge you didn’t meet head-on! Thanks again for your professionalism and the outstanding working relationship we have had through this.
You are a gifted Architect and we are thrilled with the outcome. Thank you for everything.” - Owner, Mountain Retreat






















