CATEGORY
Houses, Sustainability
LOCATION
San Clemente, Argentina
ARCHITECTS
Federico Olmedo
MANUFACTURERS
Adobe Systems Incorporated, AutoCAD, Ecoglass, Ellenza
AREA
1829 ft²
YEAR
2020
LEAD ARCHITECTS
Grupo Boreal, Federico Olmedo, Emiliano Torres
DESIGN TEAM
Federico Olmedo, Emiliano Torres, Consuelo Linares, Florián Lopez
PHOTOGRAPHS
Gonzalo Viramonte
Text description provided by architect.
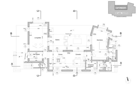
Casa Elisa is a single-family home located in a mountainous area called San Clemente, south west of Cordoba, Argentina.
From the beginning of the project we have worked together with the client, carrying out a design process in which the client's participation was very active.
The implantation was chosen looking for the highest point of the entire land, which consists of 7 hectares of mountain ranges, with native forest and a stream that defines it in a large part of its perimeter.
In this way we achieve that the inhabitant can enjoy beautiful views of the mountains, giving priority to the main rooms of the house.
Special care was taken in its orientation, making a “U” -shaped approach that opens to the north, gaining sun in winter and covering itself from the summer sun through a gallery covered with colonial clay tiles.
The entire house is on the ground floor and has access to a terrace through an external staircase.
The markedly Mediterranean style was inspired by Ibizan architecture, with white walls, with wavy plaster and rounded edges.
Solar energy was used with photovoltaic panels for electricity consumption, and with a solar hot water tank to heat the domestic water in the house.

































