Almendro 22 House
MANUFACTURERS
Autodesk, Cemex, 3d Max, Adobe, Castel, Estudio Cordoba, Expoceramicas, Prisa, Tecnolite
LEAD ARCHITECT
Carlos Elizondo Valladares
DESIGN TEAM
Alexis Ayala, Gireh Navarro
ENGINEERING
Rodrigo Vazquez
CATEGORY
Houses
STRUCTURAL
Tatyana Herrera Martinez
LOCATION
Nuevo Mexico, Mexico
CARPENTRY
Estudio Cordoba
The Project is located in one of the exponential and fastest growing áreas on the limits of Zapopan. It is located in a private condominium with privileged green áreas, wich allows the permeability between the exterior and interior, framing the visuales of its gardens.
The house is a challenge for the geometry of its terrain and for the easement that must be respected.
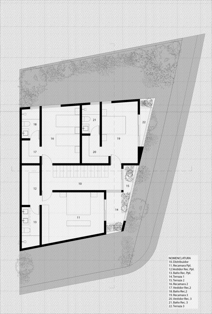
In the first instance, the house is designed based in its exterior gardens, and its vertical circulation creating visuales that frame the exterior, and free the interior space, creating terraces and balconies along the entire route.
These circulations divide the private área from the public área of the house. On the ground floor, the study and the bathroom are divided into the leisure área of the house, which is connected to the outside área.
On the upper floor, the interiores are developed with terraces and overlooking garden áreas, to generate spaces for the reflection that connects with the vegetation.
A terrace is generated on the roof top, to free up all the built space and to take advantage of the views and tranquility that this privileged place offers us.
A space for hang out and rest is created, allowing the house to be integrated with its surroundings.


























