Malvern Garden House
ARCHITECTS
Taylor Knights
PROJECT TEAM
Peter Knights, JamesTaylor, JulieSloane, James Taylor, Julie Sloane
STEELWORK
Tescher Forge
BUILDER
Dimpat
MANUFACTURERS
Vitrocsa, Hanson, Hydrotherm, Panasonic, Allplay, Bamstone, Hungry Wolf, Tescher Forge
ENGINEER
Co-Struct
LANDSCAPING
Greener Vision
BUILDING SURVEYOR
Fotia Group
LANDSCAPE DESIGN
Ben Scott Garden Design, Ben Scott
YEAR
2020
LOCATION
Malvern, Australia
CATEGORY
Houses, Extension
Text description provided by architect.
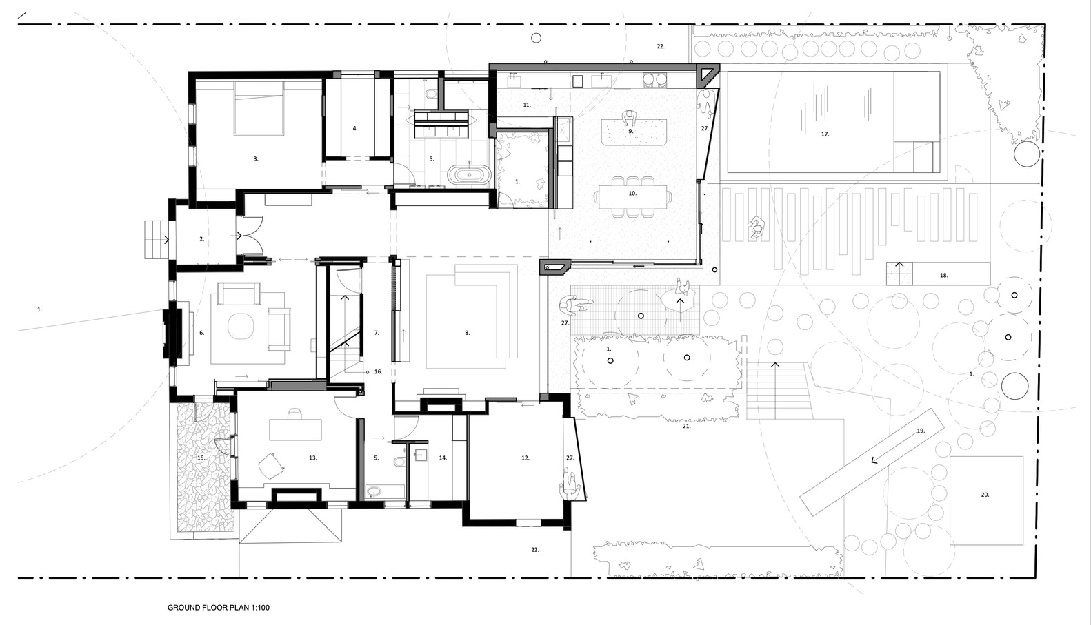
Malvern Garden House is a highly-considered adaption of an existing 1930’s period home in a hilly suburban pocket, with a new pavilion embedded within the terraced garden to the rear.
Most fundamentally, the design response seeks to actively reposition the home within its unique site, thereby strengthening and celebrating the bonds of the everyday architectural experience within its immediate, lived-in landscape.
Most fundamentally, the design response seeks to actively reposition the home within its unique site, thereby strengthening and celebrating the bonds of the everyday architectural experience within its immediate, lived-in landscape.
Period homes are often typified by disparate, compartmentalised spaces, lacking vital connection to the outdoors.
To this end, the original dwelling presented the familiar challenge of reworking a robust, but out-dated home, no longer conducive to the contemporary lifestyle and aspirations of its inhabitants.
Keen to harness the unique external conditions, our approach focussed on the sensitive layering of re-orientated internal spaces within the existing and new floorplates, injecting natural light deep into the home, and contrasting expansive new views across the north-facing garden beyond with a series of sculptural, shrouded apertures.
The addition itself accommodates a new kitchen and dining space, bookending a sequence of dissolving thresholds into the new pavilion.
The modest (and somewhat contextually atypical) addition is strategically embedded within the highest point of the site.
The formal, yet immediately tactile use of concrete evokes a sense of permanence and creates a space of daily ritual and refuge.
A ‘fourth terrace’ or sorts, the pavilion immediately takes cues from its context, supporting an unseen rooftop garden overhead, with vegetation spilling over a smooth concrete lip, echoing that of the garden retainers below.
This roof garden, along with the significant thermal mass of the new addition actively provide warmth during the cooler winter months.
The double-glazed threshold is purposefully set within the horizontal concrete forms, offering passive shading and highlighting the elegant cylindrical corner column which acts as a sundial throughout the year.
Essential to the project brief was to establish adaptable zoning that would nurture a young family, as well as provide comfortable accommodation for extended family.
This is perhaps most simply conveyed through the diverse, yet equally-distributed arrangement of shared and secluded spaces across the shifting levels and their subsequent relationship within the ‘layered garden’ of the overall site.
We actively sought to identify typical motifs within the existing home from the outset, which have been reinterpreted holistically, forming both gestural and fine-grain guideposts throughout.
Simply, the heritage stepped-brick detail is echoed in the concrete corbelling, anchoring the new addition into the earth.
Similarly, the heritage panelwork within the entrance hall delicately traces throughout the existing interior spaces, forming a familiar datum that continues through into the new pavilion.
During the course of this project, we worked closely with a skilled team of contractors, consultants and tradespeople.
The garden was expertly reimagined by Ben Scott Garden Design, incorporating the majestic established oak and elm trees as a backdrop for enriching outdoor spaces for play, produce and respite.



























