Las Golondrinas House
ARCHITECTS
PPAA Pérez Palacios Arquitectos Asociados
TEAM
Pablo Pérez Palacios, Alfonso De La Concha Rojas, Miguel Vargas, Christopher Torres, Jesús García, Camila Ureña
PHOTOGRAPHS
Rafael Gamo
AREA
450 m²
YEAR
2020
LOCATION
Las Golondrinas House
CATEGORY
Houses
Text description provided by architect.
PHOTOGRAPHS:
Las Golondrinas is locaed in Peña Blanca, Valle de Bravo, State of México.
The project takes place in the upper part of a plot, leaving the surrounding nature intact and opening up to the views of the mountains.
The house is thought as a retirement home, a place of disconnection and rest where at the same time they can spend long periods out of town.
Taking into account that the house was designed for a large family and with guests, we wanted the house to have privacy and views as a priority.
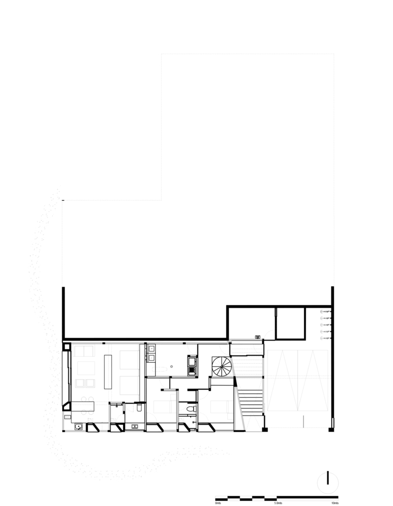
The house is organized into three independent volumes housed within a large sloping roof, the space between these three volumes generates a covered terrace that becomes the social place during the day.
Each volume responds to a function and part of the program, in one block are the room, in another the social part and in another the kitchen and services.
The communication between these is done through covered and semi-open corridors part of this large roof that also works as a covered terrace in each of the parts and as a space between interior and exterior.




































