Proto-Habitat
MANUFACTURERS
Piveteau bois, Serge Ferrari, Simpson Strong Tie, Steico, Tarkett, Batut Charpente, Bollinger + Grohmann, Bufaumene, Grand Voile, NP Rolpin, Nieto, Scierie Vieu, UNIKALO, VPEAS
LOCATION
Bordeaux, France
CATEGORY
Installation, Residential Architecture
Text description provided by architect.
Proto Habitat is a 1.1 prototype, which is developed as a live experimentation project alongside one-year research at the French Academy in Rome - Villa Medici about new forms of housing.
It’s a 100% local timber prefabricated construction, fully dismountable within few days.
It is a 60 sqm unit offering flexible space suitable for living and working, designed following criteria of privacy and intimacy rather than functions.
The 60 sqm based-unit is expandable to different sizes depending on urban or rural contexts, from individual housing to collective and vibrant buildings.
Shifting the role of the architect to « facilitator », the prototype and research aim to elaborate new forms and spaces to live together, and alternative financing methods.
This first project tries to develop a possible answer for the contemporary needs of flexibility, close relationships between home and office.
It is a prototype to create new social relationships, new forms of commons, and redefining in housing standards what comfort, minimalism, and appropriation could be.
PROTO-HABITAT IS SUSTAINABLE:
The prototype is entirely built with 100% timber materials originating within 500 km around Bordeaux. It is constructed with selected products and sub-products from the local timber industry.
All products are coming from virtuous local economies applying waste management and exemplarity in timber industries and forests, ensuring the inhabitant total control and traceability on its living environment.
PROTO-HABITAT IS NOMAD:
It is mountable within 5 days by three people using a truck crane. It is easily dismountable and transportable.
Designed to be mountable/dismountable with light handling, it does not need foundations or marking to be settled on a site.
It can be installed in a great variety of spaces. Proto-Habitat is conceived to answer new needs for urban or rural settings while remaining flexible in time.
PROTO-HABITAT IS FLEXIBLE:
Proto-Habitat is an entirely living - working flexible space. Proposing adaptable spaces from 15sqm to 30sqm, its total area can reach 90sqm.
Conceived with a principle of neutral spaces without preconceived functions, the spaces can be adapted to different life equation and living/working balances following easily its inhabitant lifestyle. They are spaces to live, work, make offering quality and simplicity, frugality, and flexibility.
PROTO-HABITAT IS MODULAR:
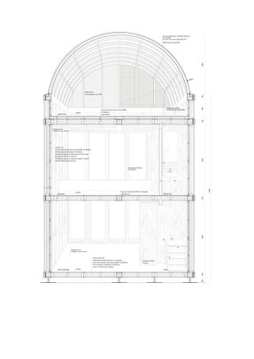
Displayed as a single element, the base unit offers flexible configuration. It is composed of an open ground floor (30sqm) a mezzanine (15sqm) and an entirely flexible sunroom under the dome (30sqm).
The base unit which totals 75 sqm can be superimposed or juxtaposed to create larger configurations from vast double apartments to collective buildings, to suit both rural or urban environments.
























