Chesa Via Principela No 19
CATEGORY
Gallery, Houses
LOCATION
Madulain, Switzerland
KITCHEN
Fried AG
ARCHITECTS
Lukas Lenherr Architektur, Salome Gutscher Architektur
PHOTOGRAPHS
Florian Amoser
YEAR
2020
MANUFACTURERS
Burgundy 18th century, Fried AG, ROCCA + HOTZ
CONSTRUCTOR
ROCCA + HOTZ
ARCHITECT
Salome Gutscher, Lukas Lenherr
COUNTRY
Switzerland
CERAMICS
Gabriele Nani
FLOORS
Fried AG
PAINTER
Malergeschäft Marcello Del Curto
CITY
Madulain
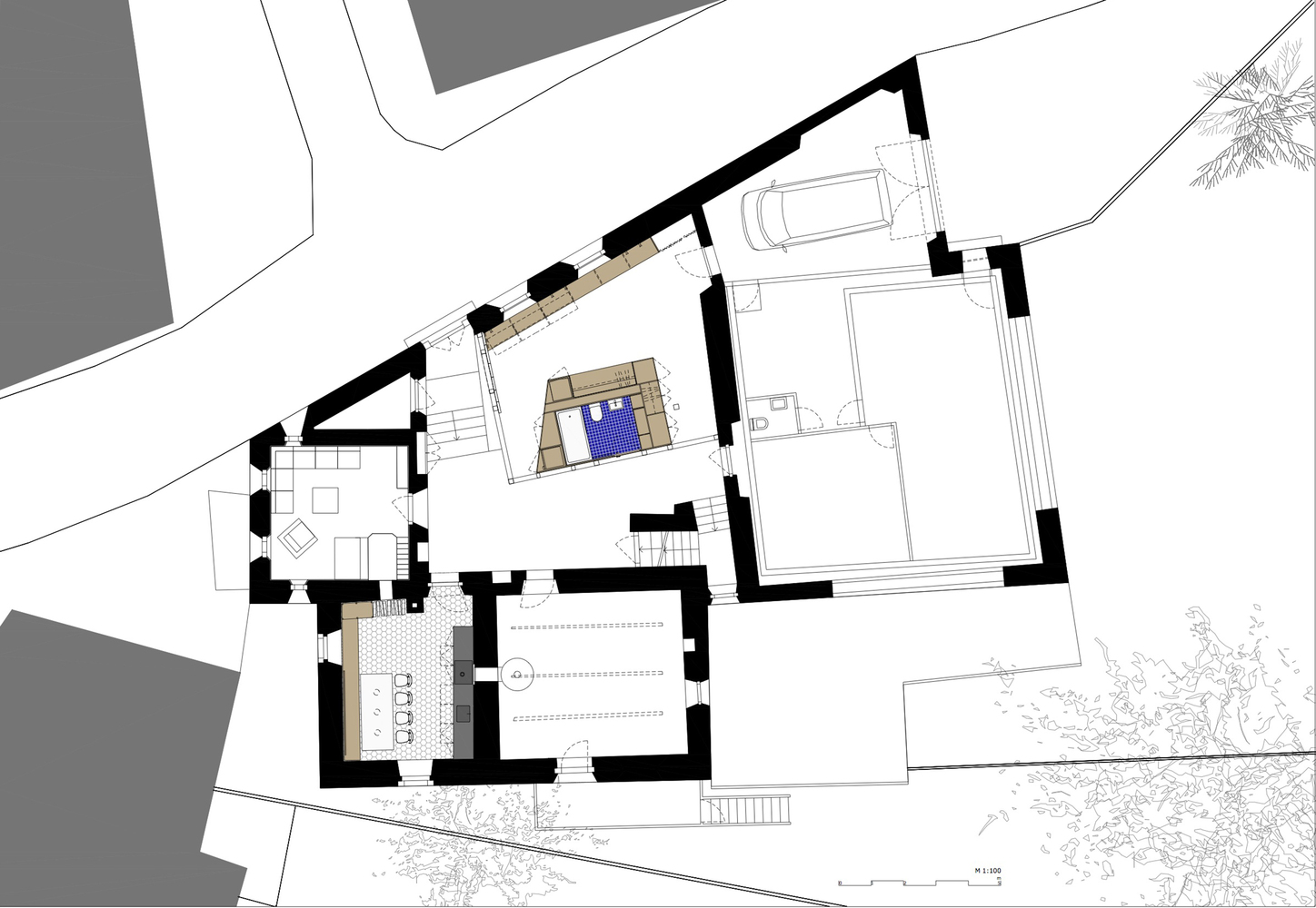
A listed Engadine farmhouse from the 16th century was to be spatially adapted to the new requirements and technically equipped for the future.
The historic building ensemble with its residential and economic part housed, among other things, a horse changing station for the Albula Post, several generations of a farming family, and, for a short time, the village shop.
With the constantly changing uses and needs, the house has been subjected to countless structural and spatial adjustments over the centuries. After the renovation, the typical rooms, the “Sulèr” entrance room and the vaulted room of the kitchen, reappear in their original form.
Today, like a large piece of pine furniture, the core with the guest bathroom stands in the middle of the “liberated” entrance area and deliberately next to the old structure.
A layer of floor-to-ceiling cabinets surrounds the bathroom and offers the desired storage space that can be used differently from all sides.
An alcove, a workbench, a long bench, the built-in washing machine, and the refrigerator fill the surrounding space and bring it closer to its original form of a multifunctional hall, the Sulèr.
The special geometry of the installation allows surprising views in a simple way and at the same time allows the afternoon light to penetrate deeper into the room.
The installation keeps a respectful distance from the massive, white walls with the various niches and original pine doors.
Statically relevant larch posts and transoms and a massive wooden wall that emerged structure the space today "as found" and their presence encourages the new fixtures to enter into a dialogue.
In accordance with the logic of honest and timeless materials and in addition to the local Engadine stone pine and clay slabs, black steel was chosen for the kitchen.
All three materials are indestructible and yet raw and lively. Their imperfect surfaces are allowed to age and thus keep the traces of time for the next generations.
Like an archaic machine, the black kitchen is reminiscent of smoke kitchens, stovepipes, and cast-iron pans. Sufficiency, dismantling, economic construction, and natural untreated materials are fundamental components of the approach.
With this in mind, this project also tried to reuse materials and equipment whenever possible. All materials are ecological, local, and interchangeable.



















