Cuartel del Mar Restaurant
MANUFACTURERS
Autodesk, Simón, Cumen, Geogravel, Growready, Torinco, Trimble Navigation
PROJECT MANAGEMENT
Paula Rosales
PROJECT DEVELOPMENT
Artemisa Espinosa
INTERIOR DESIGN
Paula Moya
TECHNICAL ARCHITECT
Manuel Moreno
ENERGY STUDY
Pablo Villarejo
STRUCTURAL CALCULATIONS
Diego San Isidro
INSTALLATIONS CALCULATIONS
Orvi Sotolor, S.L.
RENDERING AND 3 D
Diego de la Nuez
LANDSCAPING
Rent a Garden
INTERIOR DECORATION
Alejandra Pombo
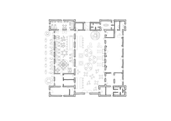
With a terrace overlooking the beach of Playa de la Barrosa, a patio with a capacity for 250 people and a restaurant area for 100 diners, El Cuartel del Mar, the new space of Azotea Grupo, is located in an unbeatable location.
At an architectural level, Azotea Grupo has relied on the study of Paula Rosales, who was in charge of the award-winning NuBel at the Reina Sofía Museum in Madrid, and who proposes a very respectful intervention highlighting the unique characteristics of the surroundings of the Playa de la Barrosa.
The building's redevelopment project aims to convert it into a restaurant and an exhibition hall open to the public. The change of use of the building requires rethinking the spaces to adapt them to their new life.
A series of improvements have been made in the distribution, both interior and exterior, to take full advantage of the conditions of the place, enhancing the views and allowing the fluid use of the facilities, both by the visitors and the staff.
The redevelopment of the building aims to enhance the elements that have been preserved while integrating the facilities and the structures required by current regulations in the most respectful and discreet manner possible.
Passive sun protection strategies are also included, such as wooden pergolas, which filter natural light to control the solar incidence on the building and its users, or the choice of light colours in the envelope to avoid overheating.
Respect for the environment is not only about enhancing the natural and historical value of the complex, but it is also integrated by using materials and local and traditional construction techniques, in a direct relationship with the artisan, revaluing the locality with a contemporary vision.
Natural materials and Spanish products are favoured, making local and national design.
All the facades and interior partitions of the building are covered in light-coloured lime mortar. Related to the image of traditional Cádiz construction, this material will be like a breathable skin protecting and allowing the building to breathe, guaranteeing those who visit a state of mental and physical well-being.
The roof is isolated and covered with gravel and a continuous concrete pavement, again in light tones to protect from the sun, and also in order to integrate the building into the landscape from a bird's-eye view.
Low maintenance vegetation scattered on the deck and patio is included for the same reason, connecting with the surrounding landscape.
The woodwork on doors and windows on facades, with high thermal and acoustic insulation, has been chosen for being a natural and warm material that creates a more comfortable interior.
In addition, wood has been chosen instead of metal for its long-term maintenance, taking into account the aggressive marine environment to which it will be exposed.
Details of clay, stone and reused elements are integrated, which repeatedly link with the historical space in which we find ourselves.
Inside, continuous polished concrete floors allow great flexibility in the distribution of spaces, giving a natural appearance and prominence to exterior views framed by windows.
The wooden false ceiling and braided reed are replicated in the exterior pergolas in a continuous play of interior-exterior spaces and incorporate the acoustic absorption hidden within it.


















