ARCHITECTS
LOOP Design Studio
LEAD ARCHITECT
Marcos Villegas, Mario Zamora
DESIGN TEAM
Jose Flores, Oscar Navarro, María José Picado
ENGINEERING
Atelier Ingeniería, MEPSA
MANUFACTURERS
AutoDesk, Lumion, Acualogica, Adobe, Bella Vida, Biotile, Canet, Helvex, Keith & Ramirez, MAD Living, NAAS Interior Culture, Panelco, Procreate, Swissol, Trimble
COLLABORATORS
MAD Living, fluctuum acústica, NAAS Interior Culture, Sphera sustainability consulting
LANDSCAPING
Vida
CONSULTING
onsost
AREA
214 m²
YEAR
2021
LOCATION
Costa Rica
CATEGORY
Houses
Text description provided by the architects.
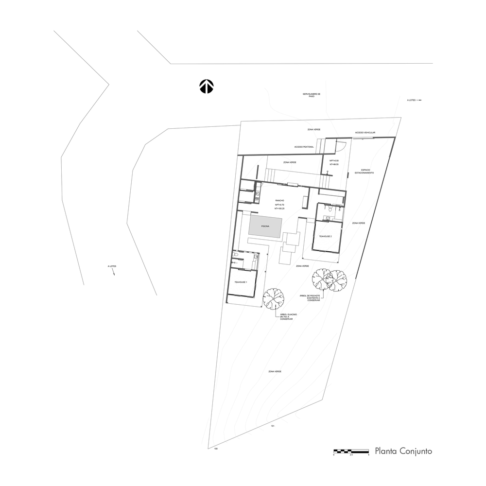
Teahouse is a project located in Playa Guiones de Nosara, just 200 meters from the Pacific Ocean.
Being in front of the sea is already a challenge in terms of materials and their maintenance, especially in the Costa Rican tropics of the intense sun or extreme rains, especially due to the speed with which the materials begin to disintegrate and this is exactly what the client devised for his home: “a house that is truly itself in ten years and not today”, that is, Patina.
The sculpted stone that scallops, the thin wood that lightens, the natural thatch that rots, the black steel that stains; the house ages with the terrain and mutates during the seasons with the giant Pochote tree that embraces the project.
In this way, the house and the land have only characteristics of their own nature.
The spaces are divided into an almost monolithic horizontal plane of concrete with high and thick walls that isolate sound and heat, floating from the ground in anticipation of floods, and a covering of thatch and wood both embody detail and invite us to look up, imitating the gesture we make in cathedrals and study the ceiling.
The steel draws portals inside the house that indicate the transition between spaces and activities.
Teahouse is a house product of minimalist and practical principles of the client, among them the Pareto principle or the 80/20 rule in which it was decided to invest the highest concentration of area in an open and multifunctional ranch that would be used 80% of the time, free to read, cook, practice yoga or have dinner with friends.
The roof hides a panel of high thermal resistance and the absence of enclosures opens the view to the trees and the breeze coming from the coast to achieve a space of well-being and comfort.
On the other hand, the remaining 20% of the area is dedicated to the privacy of the "tea houses" or rooms, from which the project gets its name.
The 4 by 4 m bedrooms are based on traditional Japanese tatami mats and become a bunker-refuge when required to provide privacy from the public-most area of the house.
The absence of traditional furniture implies an echo and internal sound bounce, therefore, sound damping efforts were made, and both the sliding windows and the ceiling address this issue.
The openings of the wooden panels were designed and cut in a CNC router, hiding behind them an invisible panel of acoustic insulation.
Also under the influence of Japanese houses, the distribution of the house focuses on taking advantage of the boundaries and in this way generating a courtyard-home.
There is future planning to modulate more “teahouses” and close the courtyard in its entirety. The spaces are aimed at its interior in search of serenity.





















































