AREA
230 m²
PHOTOGRAPHS
Kie
MANUFACTURERS
Alexindo, Cisangkan, Dekson, Mowilex, Niro granite
DESIGN TEAM
Amalia Dian Utami, Ghusni Fauzan
CLIENTS
Calvin Christian, Janet Antania
ENGINEERING
Andreas Martin
YEAR
2020
ARCHITECT IN CHARGE
Josephine Fitria, Monica Tiaradewi
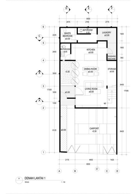
Located in a residential complex that is quite densely populated, CJ-HOUSE by RUANGRONA, is designed with a different, unique, and catchy modern facade than residential buildings in general in Indonesia.
Massively closed from the front, the opening is located on the side of the building. Had appeared a sense of worry about the light in the house, but the number of openings to the side and skylights became a solution in bringing some lights to the house that appears blocked from the front.
In response to the situation around the building which is directly adjacent to the residential area, the dwelling is designed with an inward orientation, so that residents can enjoy their residence without interruption.
Limited land area, making this residence designed in a compact way so that it can meet all the needs that exist. Our clients are modern young couples in big cities with lots of work and activities, so they need a place to stay that is not too much maintenance but also comfortable.
With a compact design, to keep giving a beautiful-green impression and eliminate the narrow impression, opposite the entrance there is a deep garden with voids to all rooms which become an attractive element in this house, so that all rooms in this house can enjoy that inner garden.
To add to the impression of area, the stair area is designed with glass openings to the outside of the building so that light can directly enter the house.
This house is very suitable for young couples or small modern families with busy daily activities, an area that is not too broad but it is enough for daily life.















