
Awrawikara House
MANUFACTURERS
AutoDesk, JUNG, Rothoblaas, Daikin, Toto, Byoliving, Dekson, Dlubal, Modena, Rothoblaas Ecuador, Sanwell Austindo, Silikal, Somwher, Trimble Navigation, Woodlam Indonesia
DESIGN TEAM
Andra Matin, Sovie Khuswa, Gana Ganesha, Aditya Akmal
CLIENT
Jeshua Sadeli
LANDSCAPE
Andra Matin
ARCHITECTS
andramatin
ENGINEERING
Woodlam Indonesia
WOOD CONSULTANT
Woodlam Indonesia
AREA
525 m²
Located in one of the very few prestigious golfing estates in the city of Bogor, Indonesia, the Awrawikara sits on a timeless housing cluster surrounded by trees and lush greenery along the main road.
Functioning as a weekend home, the residence was designed with an inward orientation of space to create optimal privacy for the homeowner.
From its facade, the Awrawikara does not boast large grandeur entrances, rather, a unique pathway stretching across the front end of the house towards the sheltered entrance, which was purposefully designed to create a fulfilling experience for anyone entering the home.
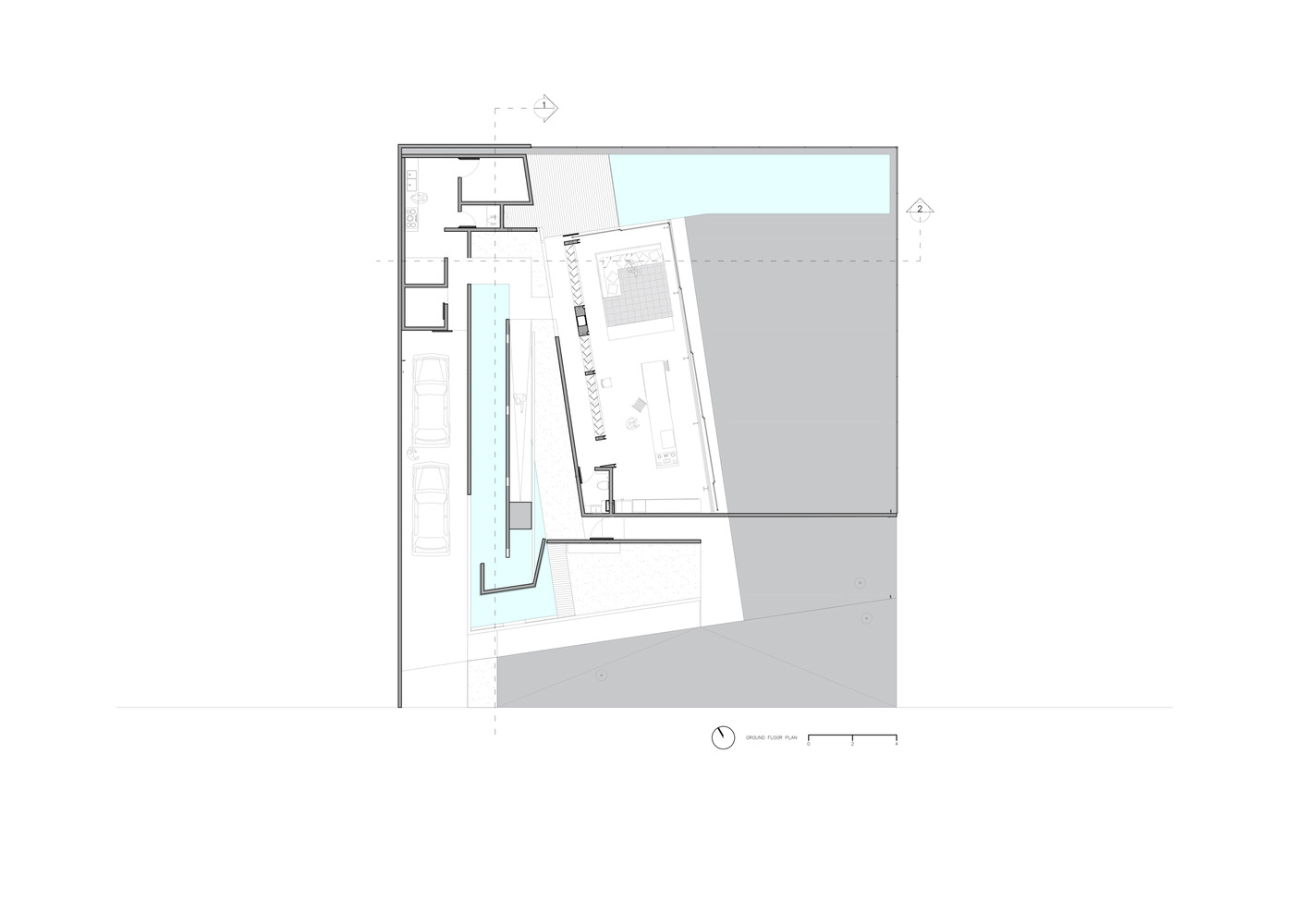
Upon entry, guests are greeted by a walkway scattered with gravel. The intention was so that people inside the house are notified by the footsteps of those entering from the main entrance.
After walking across the gravel, guests will find themselves at the foyer which connects the communal areas, service area, and ramp that leads towards the second floor of the home.
The communal areas of the Awrawikara consist of a dining area, living room, powder room, and dry kitchen.
The Foyer and communal area are uniquely separated by a semi-transparent partition in the form of a bespoke diagonally layered wooden shelf which enables natural light and ventilation to pass through each layer.
The communal areas are encapsulated with large operable sliding glass doors facing towards the luscious lawn and swimming pool.
This creates the illusion of an even more spacious communal area, really connecting and blending the luxuries of nature with interior spaces.
The upper floor is accessed through an exposed concrete ramp surrounded by local Balau hardwood cladding – creating a rather dark atmosphere.
Only the floors of the ramp are given ambient lighting to provide smooth transition moving towards the second floor, which is a brighter ambiance due to the use of Exposed Spruce wood.
The second floor consists of three main rooms; the master bedroom, guest bedroom, and spacious home office.
The master bedroom is fitted with a private walk-in closet and bathroom, whereas the home office and guest bedroom share one communal bathroom.
All three rooms are equipped with large glass openings overlooking the lawn and pool area. In order to maintain privacy in the rooms, visual access is limited by meticulously hand-plaited operable rattan screens that move simultaneously to open and close when needed.
Heading towards the rooftop, it boasts an open area with 360-degree panoramic views of the surrounding environment with aesthetically built-in benches.
Perfect for daytime and night-time lounging, rooftop soirees, barbecues, or simply admiring the magnificent clear view of Mount Salak and the Mountains of Gede-Pangrango.
https://youtu.be/ej8wNWP-GCo
The Awrawikara; The Riches of Life and the Luxuries of Nature.
































