ARCHITECTS
Sute Architect
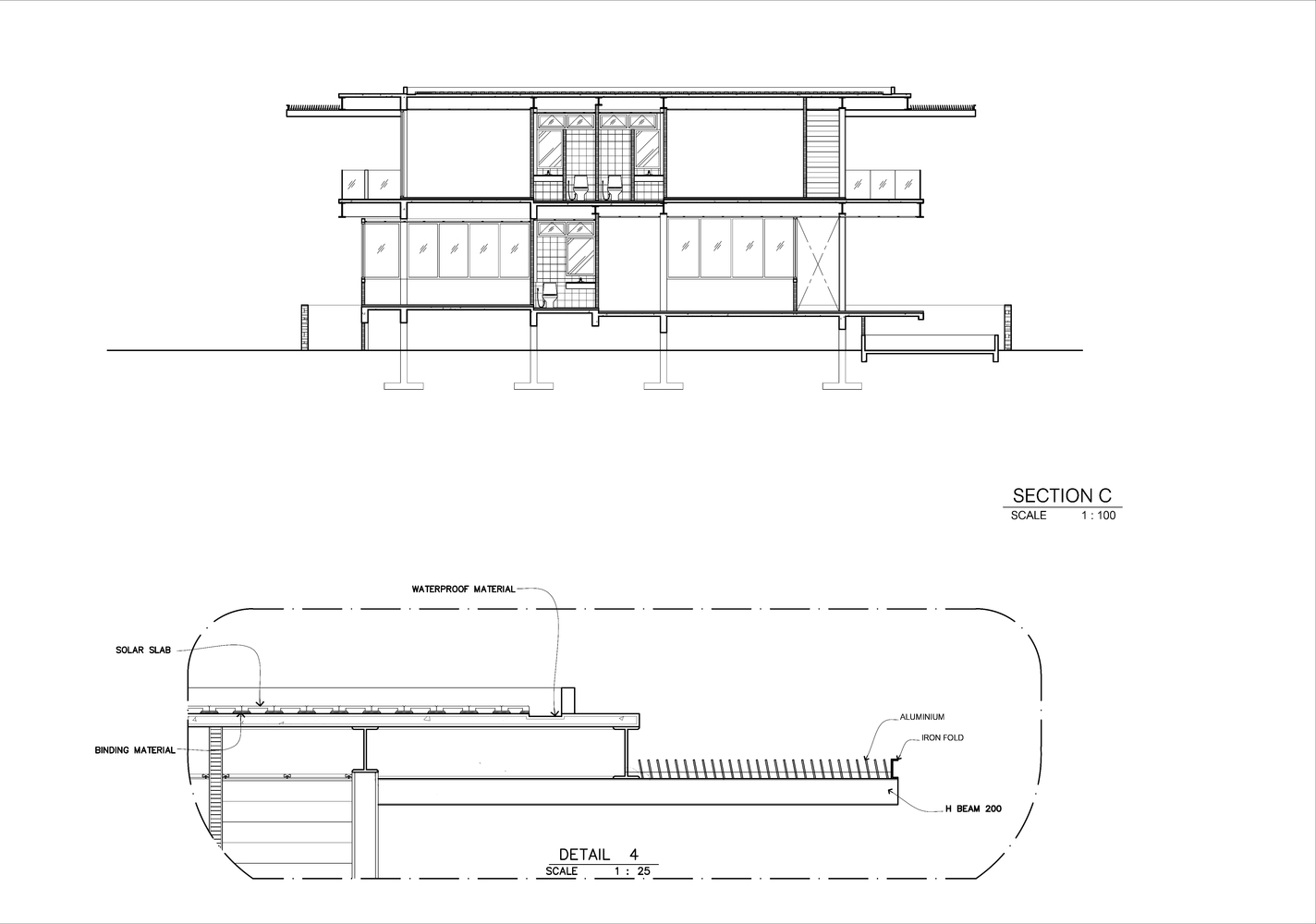
STRUCTURE
Steel Structure, Reinforced Concrete Finish
MANUFACTURERS
AGS Stainless, Guardian Glass, SCG
DESIGN PARTICIPATION
Sittiphon Komonwetchakul, Sutthinon Thawaisin
LOCATION
Tambon Yang Yo Phap, Thailand
CATEGORY
Houses
Text description provided by architect.
Ms.Por’shouse is the steel structure modern stylehouse. It located in the middle of the field, that is the first figurewhen the designer realized the task to design Ms. Por’s house.
This house has 3 bedrooms, a family home in a big rice mill surrounded by fields that can provide 360 degree views and steel structure to save construction time and labor saving in construction.
In design, start with the proposition in order for the house that the wind can blow through the house, the house is laid out as a U shape so that it can get the wind and it can create a chill wind in the front of the house, be able to sit all day.
The back of the house is where the family can have a back porch to sit and enjoy with the rice field in the evening, using the building to shade in the backyard, giving the building to be a relaxing space and getting the wind both front and back side of the house by placing the hallway open.
Even this house is built in a modern style, but it makes the modern home with the fields look good and contemporary with a present time.






















































