ARCHITECTS
De Jaeghere Architectuuratelier
PHOTOGRAPHS
Hendrik Biegs
CATEGORY
Houses
AREA
467 m²
LOCATION
Roeselare, Belgium
YEAR
2012
Text description provided by architect.
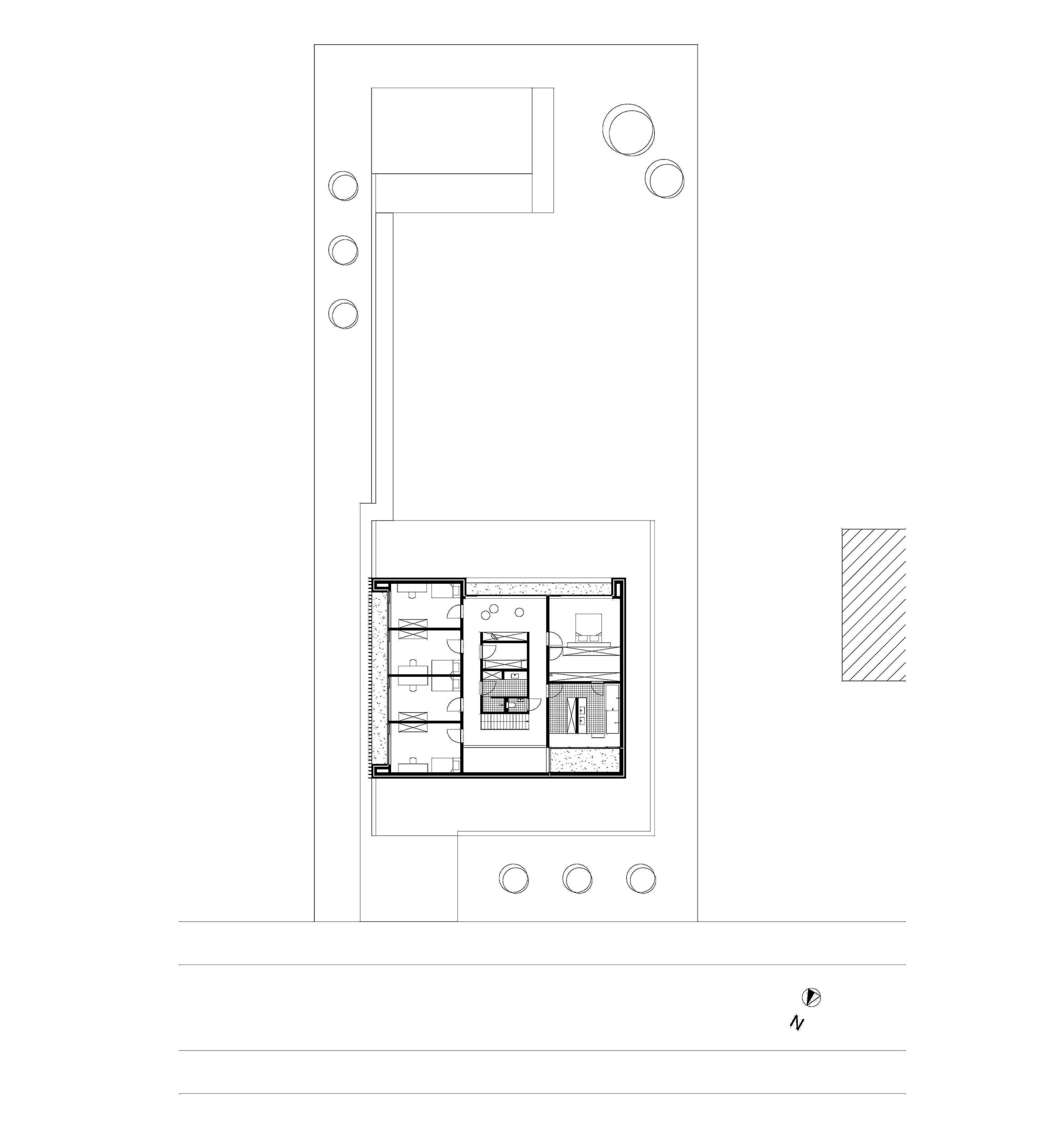
The owner requested a clear link between his property and the surroundings, more specifically with the nearby castle, even though privacy ought to be guaranteed at every moment
This is why the villa is designed with a patio enclosed by a wall. Passers-by cannot see what is happening inside the house.
When walking through the entrance gate, one gradually discovers the mixture of light and transparency.
The living area permits residents to look outside and have a panoramic view on the nearby castle.
The whited exterior wall reflects the sunlight and enhances the impression of exterior space.
The slate stone links the interior with the patio and blurs the border between inside and outside.
Light creates dynamism in the house, as architectural lines bring in natural light and are supported by lines offering artificial light.
The patio wall is connected to a garden wall with pool house and composes an intense relationship with the garden.
The walls give a strong and solid impression but simultaneously they create a feeling of intimacy. They are discrete pillars that make the surroundings stand out.
In the bathroom too, the question of intimacy and light was addressed: the border between inside and outside fades as a pillar of dimension stone, in which both the bath and the walk-in shower are organized, visually continues up to the interior patio level.





















