ARCHITECTS
TETRARC: TETRARC architectes
PHOTOGRAPHS
Stéphane Chalmeau
YEAR
2011
LOCATION
Nantes, France
CATEGORY
Houses
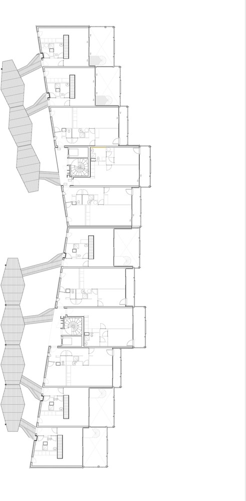
Tétrarc has created 39 social housing shapes as 11 “Houses” gathered side by side.
The resultant continuous volume describes a light 21 degrees inflexion on its half, creating two distinct households.
As the first one contains 6 rental houses, the second one is dedicated to the 5 sold houses.
In order to optimize the space for living rooms without increasing reference surface areas each housing is organized around a nucleus made of a kitchen, a bathroom, toilets, and a staircase for duplex apartments.
In the same purpose, accesses to the housings are located outside the building as an unexpected & playful iconic element.
Households are characterized by a greenhouse in front of their façade.
They are the continuum of the spaces inside the housing, provide more surface areas, and even are a great living volume in the duplexes.
Finally, private gardens take place at the foot of each household, extending them and offering an innovative way to practice gardening in order to promote neighbourhood relationships.
Thus, Tétrarc plays on different tunes. It sets the project in modern history of individual social housing which began in 1925-1930’.
It provides an innovative answer to the sustainable social housing question with new forms and use of materials. It also provides a recalled quality of life to its inhabitants with its innovative performances of indoor spaces extended on the outside.














































