Summerhouse In Denmark
YEAR
2012
LOCATION
Denmark
CATEGORY
Houses
Text description provided by architect.
The site is located in a beautiful, windy summerhouse village on the northern tip of Sjælland, Denmark. It is a summerhouse for a family of five, and a dog.
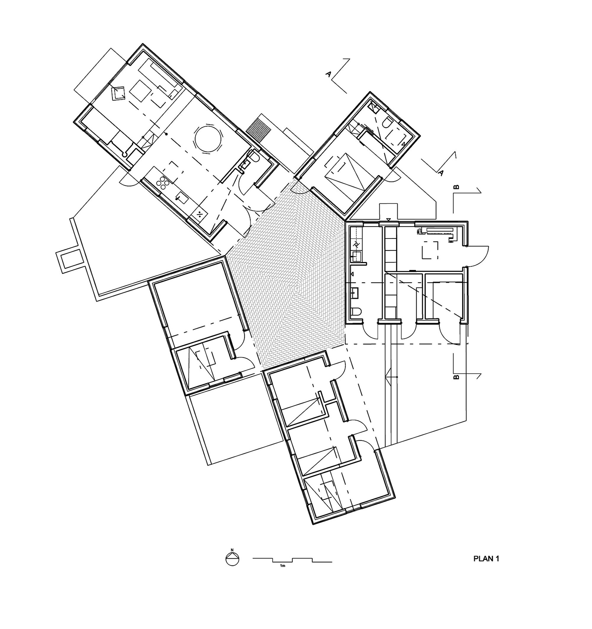
The project is an assembly of five small buildings gathered around a wind shielded courtyard like a miniature village.
The layout is well known in this area, often used for organising traditional farm buildings.
There is a kitchen building, parents building, children’s building, guest building and utility building.
The concept serves different purposes beside the issue of a wind shielded courtyard:There are no indoor transportations areas, this makes for an active outdoor living and reduces the built area.
A certain distance between different functions and users is allowed for by the detachment. The small buildings also define outer wind shielded bays disposed for sheltering and gardening, all accessible from the inner courtyard.
The ridge and cornice of the houses are on the same height, while the width and length vary.
This gives the roofs different angles, making a playful composition in relation to the surrounding summer houses.
The inner courtyard is covered with a darker stone on the floor to store heat from the day throughout the evening.
Roofs and walls are covered with corrugated sheets of sea water aluminium, and the gable walls are clad with Siberian Larch.


























