Spectra Building
MANUFACTURERS
Alfa, Arcos, Arkos, Decorcerámica, Hunter Douglas, Metecno
CATEGORY
Offices, Commercial Architecture
Text description provided by architect.
The project is located in a residential area of the city of Cali that was developed by families with a high purchasing power in the 1960's. Due to its strategic location, this area was transformed into office buildings, corporate headquarters, and trade.
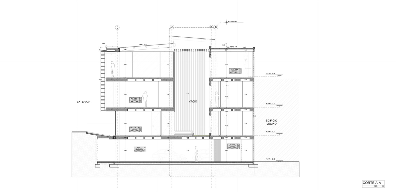
The investor clients, owners of a technology company called Spectra, plan the building for their headquarters, taking advantage of the commercial nature of the sector, and also offering some areas of the building as offices and premises for rent.
The project arises from the intervention on an existing structure of a house built in the 1960's, which we must reinforce structurally to suit the current regulation, resulting in the exclusive recovery of floor slabs.
THE PROPOSAL
Cali is located at 900 meters above sea level with an average temperature of 28 degrees Celsius, this means that buildings must be protected from permanent sunlight.
This problem could be solved very well with the architecture of the 60's and 70's of the city, through openings and parasols which were used repeatedly in buildings of this era, and are revalued in proposing them in this project.
The building, on request by the client, needs to multiply the areas of income, which requires developing a large occupation.
To ensure comfort we preserve three pre-existing voids as courtyards, which will be accompanied by vegetation, water and natural light. This is coupled with the permeability of the facades, resulting in a proper passive ventilation and lighting within offices.
With the intention of generating high levels of comfort, we propose a system of deep facades that gives thickness to the skin of the building, which succeeds in making an efficient climate transition and addresses the need to protect every space of the building.
The independent solar development of the facades makes the shades different and the openings of the windows as a logical response to the analysis of the place.
This system, both opening as parasol, forcefully resolves the sunlight while not neglecting the impact of the North-East winds for cross ventilation.
This passive climate system means less energy consumption and makes the building set, from inside, a closer relationship with the context, with the distant landscape and the immediate vegetation.
Climate protection therefore largely defines the image of the building, ceasing to be a false facade or isolated skin cladding to become a structural part of the project, which makes it approach the good architecture of the city.


























