Holy Family School
ARCHITECTS
Ferrier Baudet Architects
LOCATION
Australia
STRUCTURAL ENGINEER
Bligh Tanner
CONTRACTOR
Walton Construction
COST CONSULTANT
Flavio Costanzo
HYDRAULIC ENGINEER
Chilton Woodward
ELECTRICAL MECHANICAL ENGINEER
Multitech
The Multipurpose Hall was funded by the Building the Education Revolution (BER) Programme through Brisbane Catholic Education. The client requested an iconic building to provide a much-needed covered outdoor area for sporting activities and arts-based events and to reinforce the school's identity.
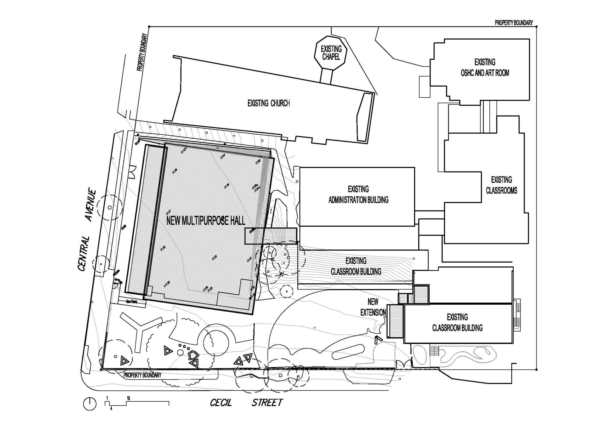
The building was erected on the site of the existing double tennis courts and is equipped with a full-sized tennis court, handball courts, stage and off stage area, multipurpose room, storage for sports equipment, amenities and AV facilities.
The building is used on an every-day basis by the school as a gathering space - it accommodates the entire school cohort - for specific lessons and for play. It is also used by the parish and community to host sporting and cultural events.
The brightly striped façade responds to the vibrancy of the adjacent play equipment and gives the school a presence at street level.
The choice of colour was critical to the success of the building - the school colours provided a starting point but these are presented in couplets which allowed the use of strong but not bright colour and prevented any one colour from dominating. At night, the facade is illuminated to great effect. Respect is paid to the Holy Family Church on the same site, through the use of neutral colours at higher levels.
The floor plan and form of the hall was the result of a close collaborative process with the school principal and the school community was kept well informed of progress throughout.
The materials used - fibre cement sheet, concrete block, multicell polycarbonate, EPS walling, timber composite battens and metal cladding - were chosen as they are cost effective, low maintenance and robust and they could be used in combination to provide an engaging and child-friendly space. The space is easily accessed from the school buildings via the covered stair and also from the adjacent playground as much of the southern facade opens up via three large roller doors.
Holy Family Multipurpose Hall demonstrates sustainability in that it is appropriate for its environment, is a flexible space designed to accommodate a wide variety of human activity and has been constructed to a limited budget.
It demonstrates the following environmental initiatives: underground rain water tank for landscaping and toilet-flushing, dual flush toilets, low energy lighting, wall and roof insulation, natural ventilation and ceiling fans, energy efficient glazing, roller shutters to western facade.
At the social level, the building has been designed for a range of activities and user groups - it connects the school and parish to the community and reinforces social networks. It is a safe and comfortable environment which is highly adaptable.
The building is engaging and aesthetically pleasing and reinforces the school's physical presence. Economically, the Hall was built with defined funding from low-maintenance and robust materials. Energy-efficient initiatives help to reduce running costs and flexible design may help to reduce future refurbishment costs.
The Multipurpose Hall in its prominent location on Central Avenue Indooroopilly gives a small Catholic School a strong physical identity in the local community.












