
Liselotte Rauner School
ARCHITECTS
Léon Wohlhage Wernik Architekten
PHOTOGRAPHS
Christian Richters
YEAR
2011
CATEGORY
Schools
LOCATION
Germany
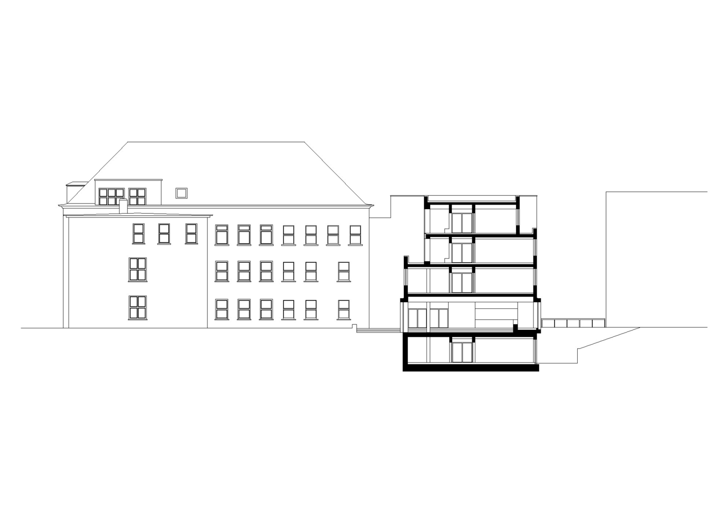
Liselotte Rauner School, Bochum-Wattenscheid. The new school is developed from an existing 1930s building and the new extension building to create an ensemble along the road building line. A second, calmly graded adjoining building was inserted at the same level on an angle towards the compact volume of the existing building.
Both buildings retain their autonomous design: red bricks with white-framed window bands in the existing building and a light pink plaster façade with charcoal coloured window frames for the new building. Together the two structures powerfully present themselves to the urban environment.
Teachers and students use stairs and a ramp to access the entrance plateau, which is a covered terrace on a higher level than the public pavement. From there one can walk directly into the high, open foyer and can see all the floors at a glance.
From the foyer, the main stairs lead upwards to the classrooms. The assembly hall, canteen and outer rooms for the lunch break are situated on the ground floor at the centre of the school.
The assembly hall is the heart of both buildings and when necessary, can be transformed from an open, bright room into an auditorium with a stage and generous space for direct access to the playground.
The buildings’ compact envelopment creates a bright, yet enclosed playground with a broad school garden towards the south.
Excellently equipped specialist rooms, group work rooms, a self-learning centre and the freedom of spacious connecting walkways make the school a pleasant living and learning space.













