Residence of Daisen
ARCHITECTS
Keisuke Kawaguchi+K2-Design
PHOTOGRAPHS
Koji Fujii - Nacasa&Partners
CATEGORY
Houses
YEAR
2011
LOCATION
Yonago, Japan
This is a guest house located in the forest of Daisen piedmont, Yonago City, Tottori Prefecture.
The house site is situated in the midst of abundant cherry and pine trees, standing at natural well-balanced intervals with trunks reaching towards the sky with bountiful leaves. The figures of the trees are beautiful. They are the legitimate habitants of the forest.
Sensitive dialogue with the site is requisite to building a house that lies in coexistence with nature. Our building plan was drafted according to this idea.
We arranged the house with most surrounding trees untouched and ensured the living space in the aperture to a maximum extent.
A style coexisting with the forest is the keystone of our design, so we carefully surveyed and analyzed the lot for building, and designed a way to connect each function space of the house by short connecting passages.
Differently-pitched roofs snuggling up to the extension of branches and foliage made it possible to take in sunlight effectively.
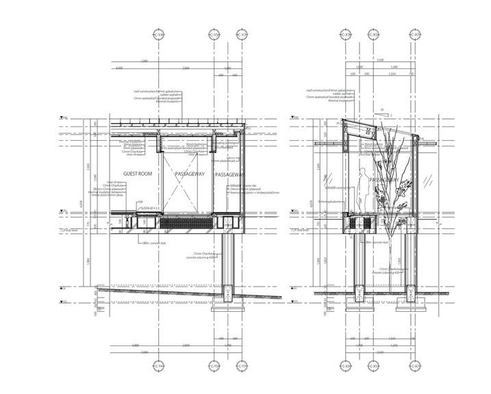
In Daisen we have almost two meters of snowfall in winter, so we adopted a piloti style with living spaces on the second floor in order to allow ample cross-breeze, while also reducing moisture and heat rising from the ground in summer.
These considerations made it possible to maintain comfortable living conditions in all seasons.
The forms and colors of the forest seen from each room are as deep as the eye can see. Bright (red), tangible (white), obscure (blue), dark (black)—we may call them the colors of the day.
The changing seasons create a bountiful, colorful composition! How satisfying is the abundance of passing time that the forest beats when living in this house!
Even after the house completes its life in the future, the forest around it would continue on. Finally, our primary endeavor, Coexisting with the forest, would be fulfilled.
























