ARCHITECTS
T38 studio , Pablo Casals-Aguirre
LOCATION
Tijuana, Mexico
CATEGORY
Houses
AREA
300 m²
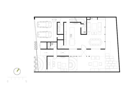
Single family house in Tijuana, on a site where we are developing ten other single family infill houses on sites that range from 300 sq m to 450 sq m.
This is house is designed as an experimentation into weight. Juxtaposing the a solid black box, that is covered in volcanic stone native to Mexico on top of a lightweight white box that contains the public part of the house.
The black box is the private part, perforated by vertical openings that are not percieved from outside, creating a set of terraces around the whole perimeter.
The first floor has openings throughout as to blend the interior and exterior spaces.
From the street, you enter through an axis that slices the site in two, having a view towards the city.
On the right side there is a studio for the owner who is a psychologist and the main entrance to the house is towards the back of the site.
The lower part of the house is an open floor plan that contains the living room, dining room and kitchen.





















