The Town of Amherst, home of Amherst College and the UMass flagship campus, has recently undergone a community-wide master planning effort, the first since the 1960s.
The new master plan recognizes that the goal is no longer just to prevent bad development, but to foster good development. Good development requires excellent design.
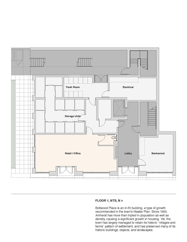
Constructed in 2010-2011 and built on an extremely tight site, Boltwood Place is an in-fill building, the type of growth recommended in the town’s Master Plan.
Since 1950, Amherst has more than tripled in population as well as density, causing a significant growth in housing. Yet, the town has largely managed to retain its historic “villages and farms” pattern of settlement, and has preserved many of its historic buildings, objects, and landscapes.
Boltwood Place is 12 luxury rental apartments over retail space. Steel frame with concrete floors. Rigid exterior insulation and closed cell spray foam in the wall cavity.
Expansive south glazing with western red cedar cladding. Condo quality finishes; white oak flooring, white oak european cabinets, and stainless steel built-in appliances.
Interiors are open and free flowing, detailing is clean and simple. Spaces are brightened by the abundance of natural light, as well as light wood finishes and white oak flooring. Adhering to USGBC LEED standards, the building systems and appliances are highly efficient, and recycled, locally sourced and nontoxic materials are used throughout.
This project was completed in collaboration with architect of record, Arrowstreet.













