
Office 64 de l’Habitat
MANUFACTURERS
RAICO
STRUCTURAL ENGINEER
OTCE PAU
YEAR
2011
MECHANICAL AND ELECTRICAL ENGINEER
Nobatek
PHOTOGRAPHS
Mathieu Choiselat, Vincent Monthiers
ACOUSTIC ENGINEER
IDB Acoustique
QUANTITY SURVEYOR
TSA
ERGONOMICS
ANTEIS
INTERIOR DESIGNER
ASA 2002
AREA
3394 m²
LANDSCAPE ARCHITECT
Sabine Haristoy
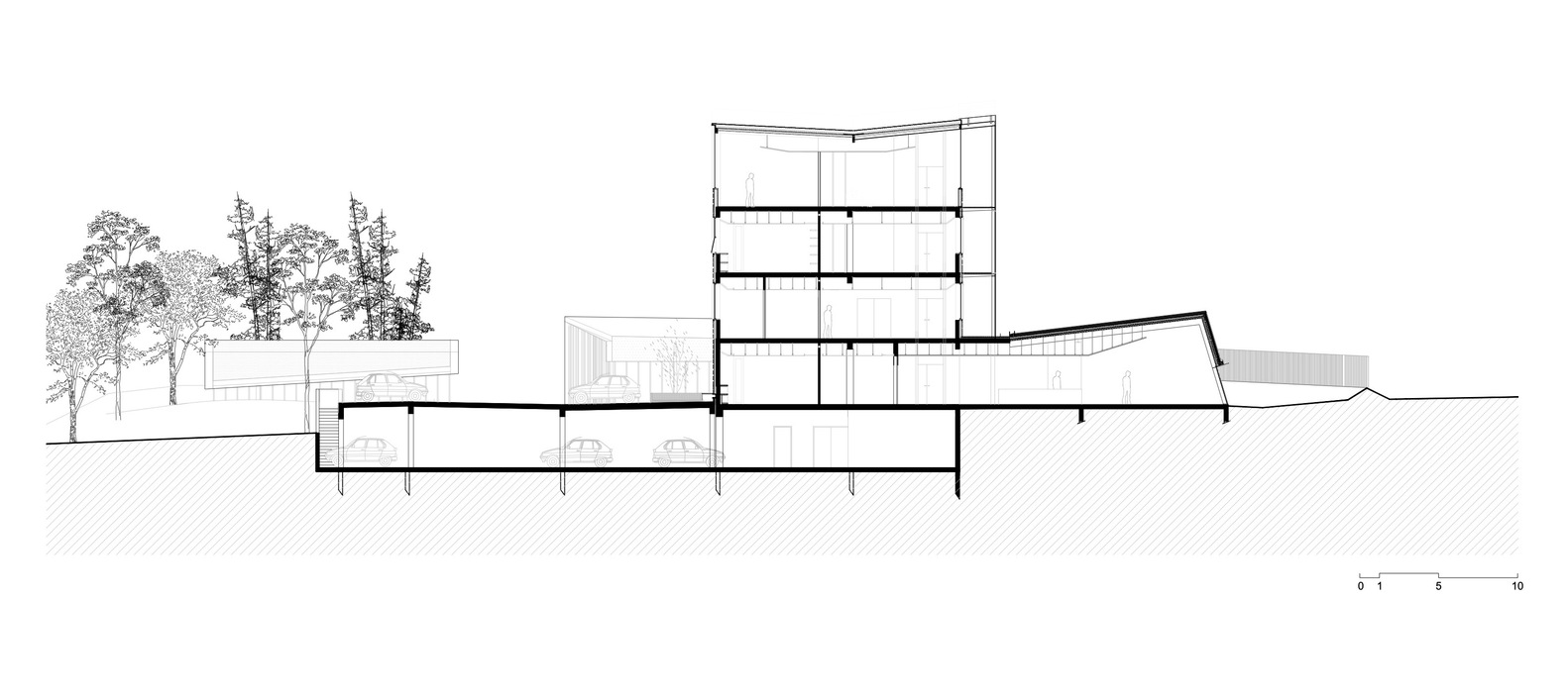
Through its architecture and the way it interacts with the site, the headquarters of Office 64 is an imposing monument as you enter the town.
It is both discrete and significant, re-interpreting the codes of public architecture.
The building flows in tangent with the road and develops distinctly prism-like volumes which emphasize the road’s outline.
The cars driving past are thus mirrored by the sequenced lines of the architecture.
A first green strip, seeming to grow straight up from the ground, is home to the workshops and to the entrance of the building, which, set further back, emerges as a façade conceived as both captor and filter.
This façade-glasshouse absorbs and directs light, thus limiting temperature exchanges between the interior and exterior of the building.
A double flux ventilation system supports this diffusion/evacuation of heat according to season whereas the concrete structure, externally insulated, offers excellent thermal inertia.
With grids that are adjusted according to the building’s orientation, each elevation builds a sense of depth, mass, and color, echoing the tree-lined site.

This work on rhythm and transparency is confirmed in the office spaces sheltered under a wooden structure, warming the atmosphere and stimulating the perception of volumes treated with sobriety.
























