House on Limekiln Line
Text description provided by architect.
The House on Limekiln Line sits on a 25 acre farm lot in Huron County, Ontario. The site is in constant flux due to shifting diurnal and annual conditions of weather, cultivation and occupation.
The house sits lightly on the land while registering and amplifying specific conditions of this vast productive landscape: it frames expansive views of the shifting crop quilts adjacent to the house and it acts as a datum to an existing topographic shift on the site.
The house is calibrated to allow views into and through the house, facilitating an interior visual spatial expansion.
An extended south deck and west deck walk offer threshold spaces that extend this experiential choreography while also mediating between enclosure and exposure and extending seasonal exterior occupation of the site.
The house is off-grid and utilizes a number of sustainable measures that reduce operational and embodied energy consumption.
Siting and orientation facilitate passive heating and cooling. A generous south deck overhang blocks summer sun while allowing winter sun to heat the concrete thermal mass floor.
Evenly distributed operable windows facilitate summer cross-ventilation and stack effect heat purging.
Triple glazed windows, a highly insulated envelope detailed to reduce thermal bridging, and the use of high efficiency appliances ensure that energy consumption required to service the house is low.
The house offers back to the cultural landscape in which it sits. The architectural language of the exterior, a monolithic galvanized steel shed, is informed by the local agricultural vernacular to ensure visual coherence within the landscape and to facilitate construction with locally available and sourced materials.
As a design-build project, construction was completed largely by local farmers familiar with agricultural building practices.
The rich dialogue with local craftsman ensured that the house is rooted in the building practices and conventions of context while also offering the community exposure to innovative resource and energy-conserving construction practices.
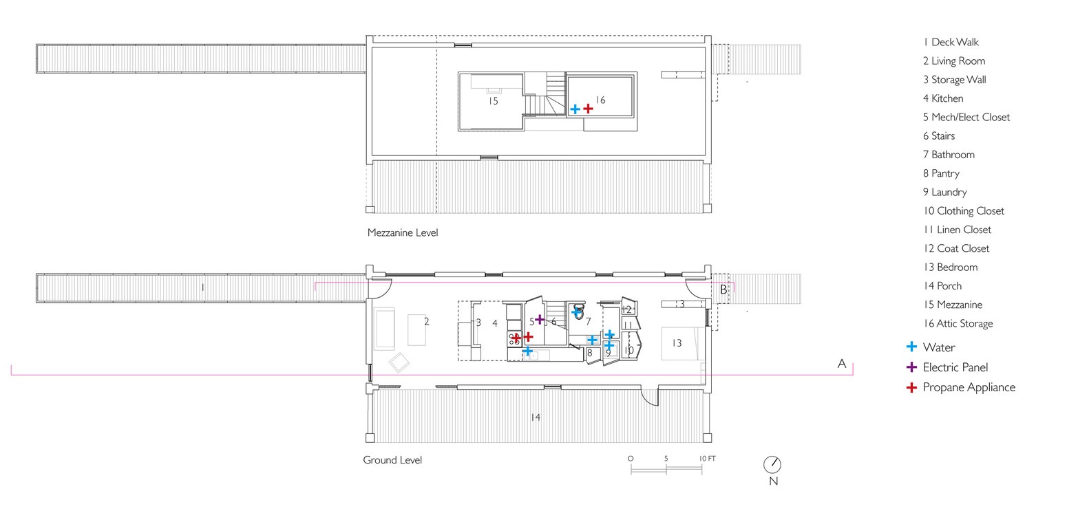
The interior of the 85 sqm house is composed of a core of service spaces floating within the shed shell.
Carefully calibrated views into and through this core ensure that, despite its limited footprint, the house is visually expansive.
This experiential choreography, along with careful siting, with crops growing to enclosure, allow the house to act as a place of observation, a space that defers to and reflects back the annually and diurnally shifting landscape beyond.
Creating a dialogue with and respect for the local culture and landscape encourages a sense of stewardship towards the larger ecological and environmental processes of the vast agricultural landscape in which the house sits.


















