
Heritage Park of Qin Er Shi Mausoleum
CATEGORY
Crypts & Mausoleums
LOCATION
Xi'an, China
ARCHITECTS
Lacime Architectural Design
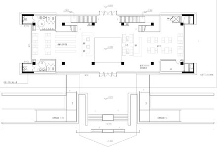
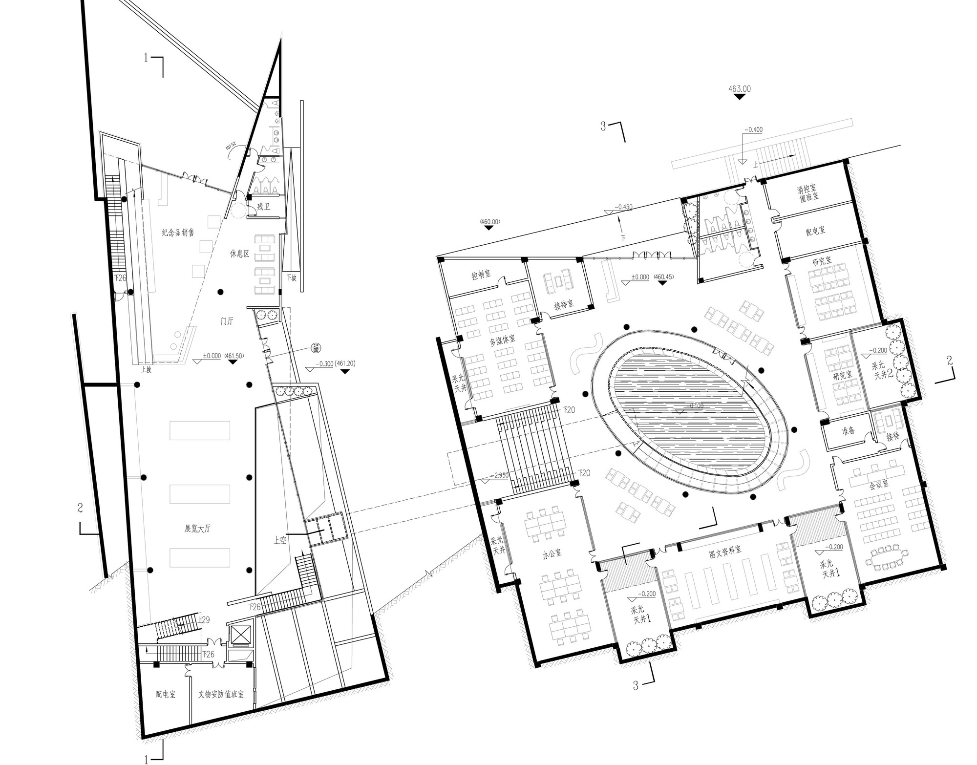
Considering the present geographical environment of Qin Er Shi Mausoleum, Architects maintain the original sacrifice axis of the Mausoleum and additionally they explore a new display route.
Most of the new buildings were placed on the ground or underground, these contribute to the natural vegetation and whole environment.
And also in the artistic conception, the design emphasizes the dignified and bleak emotional factors, which encourage tourist experience the Strong to decline process of Qin Dynasty.
Reasonable circulation design makes people feel the combination of environment and building during the exhibition, research, education and the process of leisure.






















