Foster Road Retreat
PHOTOGRAPHS
Integrated Studio
MANUFACTURERS
RHEINZINK, NanaWall, Panda Windows & Doors
CATEGORY
Houses
YEAR
2017
CITY
Iowa City
ELECTRIC
Advanced Electric Inc.
CONTRACTOR
Smith & Wood Construction
COUNTRY
United States
STRUCTURAL ENGINEER
M2B
HVAC
E&J Geothermal
The retreat for an urban developer integrates minimalist elements into a modest 1850’s farmhouse.
Over the years, well-intentioned accretions—ornamental dormers, an incongruous addition, and a cavernous porch—had cloaked the house in a dog’s dinner.
Demolishing these elements yields tailored alterations that sympathetically update the house for modern use.
A weathered steel fence demarcates the property, its encircled lawn providing a sanctuary of stone paths and shade trees.
Although housing developments have replaced the fields beyond, the homestead still strikes a commanding air.
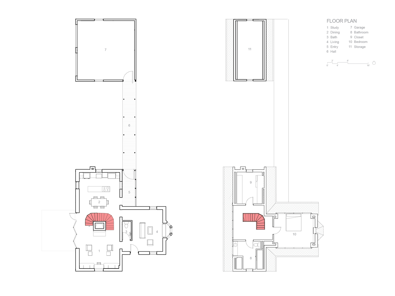
The retreat’s modest exterior belies the spaciousness of the main floor. Masonry and timber are left exposed, while new surfaces receive variations of white. Details are minimized to let wood, brick, steel, and light converse.
A remnant of the original masonry fireplace anchors the composition, skirted by a suspended steel stair.
The stair provides access to the bedroom suite above, tucked within existing roof geometries.
Fully-glazed dormers provide essential headroom, bathing the attic in light and framing views of trees and sky. The intimate suite includes a bedroom, bathroom, and laundry/closet.
The retreat presents an understated choreography of new and old. It expresses deep respect for the humble old farmhouse without delving into nostalgia, reveling in the rural past, or fetishizing fixtures and finishes.
Closed cell foam insulates the roof and wall; a closed-loop, a horizontally-bored geothermal system provides climate control; and an 8.4 KW photovoltaic array powers the mechanical system, LED lighting, and EnergyStar appliances. The result is a comfortably stylish upgrade, assertively and unselfconsciously modern.
















