
Shanghai Hongqiao Performing Arts Center
ARCHITECTS
BAU
LOCATION
Changning, China
CATEGORY
Cinema, Renovation
AREA
14300 m²
YEAR
2016
PHOTOGRAPHS
He Shu
MANUFACTURERS
VMZINC, Shanghai Boji Intelligent Curtain Wall Co., Ltd., Shanghai Xiaonuo Construction Engineering Co., Ltd., Shanghai Shipu Architectural Decoration Design Co., Ltd., Henghao International (Shanghai) Co., Ltd.
LANDSCAPE TEAM
Robin Armstrong, Li Luo, Yongqing Liang, Qi Cheng
CONTRACTOR
Jiangsu Guangyu Construction Group
3 D RENDERING
BAU
CLIENT
Shanghai Changning Cultural Bureau
CINEMA TECH
Shanghai Paradise CineTech Co., Ltd.
THEATER STAGE TECH
Zhejiang Dafeng Industry Co., Ltd.
ACOUSTIC DESIGN & CONSULTANT
Shanghai Research Institute of Building Science Group
DOCUMENTING ARCHITECT AND ENGINEER
Qingdao Times Architectural Design Co., Ltd
INTERIOR ARCHITECT
BAU + Shanghai Jianke Architectural Design Institute Co., Ltd
HIGHLY VISIBLE
The project is located in Tianshan Road, the new commercial boulevard in Hongqiao, one of Shanghai’s high activity districts.
This development replaces and expands on the existing state run cinema centre on the site.
The project was the subject of three rounds of invited competition over 5 years before BAU was contracted to design the project.
EXPOSURE TO DIFFERENCE
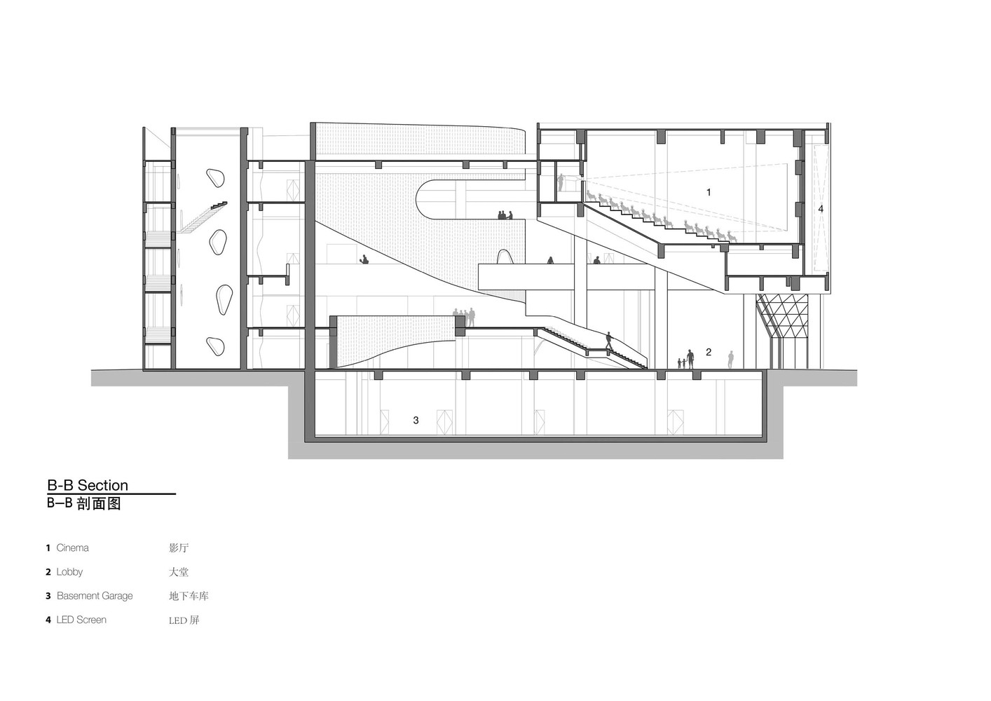
This project includes both traditional and modern programs of mass entertainment: theatre (1000 seats) and cinema (seven of various capacities).
Usually seen as separate programs and increasingly supported by distinctly different user groups, this project presents the opportunity for the two different programs and variable patrons to engage.
Articulating the programs as separate objects and linking them via an enclosed plaza creates an in-between-space in which the differences between the programs are enhanced,
the potential for cross-patronage is maximised, and cross-fertilisation between the performing arts is encouraged.
AN ASSEMBLAGE OF DIFFERENCE
The theatre is developed as a stone monolith (a traditional material for a traditional program) with rounded articulation and a theatrical staircase.
The enclosed plaza or mixing-lobby has ticket offices, café, flexible exhibition and event space, and open views to the external plaza and streetscape, also designed by BAU.
The cinemas are an ensemble of stacked metal boxes (a 20th Century material for a 20th Century program), the largest of which is suspended above the street corner.












































