Palace of Justice
ARCHITECTS
Mecanoo
AREA
48000 m²
YEAR
2017
LOCATION
Córdoba, Spain
CATEGORY
Courthouse
PROMOTOR OWNER / DEVELOPER
Consejería de Justicia e Interior (Junta de Andalucía).
CONSULTANT
Ayesa, Ute Isolux Corsán-copcisa
PHOTOGRAPHS
Fernando Alda
Text description provided by architect.
The new Palace of Justice in Córdoba is located in Arroyo del Moro which is characteristically dominated by anonymous housing blocks, products of the rapid urban development of 21st century Spanish cities.
The blocks that characterize the urban fabric of the zone were not capable of generating public space or offering something new to the city, but collectively they form a compact and coherent urban identity.
The addition of a public institution to the area creates the opportunity to upgrade the public realm and add a civic quality to this relatively new neighborhood. This responsibility to strengthen the public identity informed the concept for the Palace of Justice. While the Cordoba city center is located south-east from the site.
The building volume was condensed to create a generous entrance square to the north which connects it with the existing Huerta del Sordillo gardens. The massing strategy creates urban integration through fragmentation.
It follows a similar strategy to the spontaneous growth process of medieval cities resulting in a volume which is carefully sculpted to adapt to the surrounding context.
https://youtu.be/ZasaTAoLVQA
This results in a puzzle-like structure which hints its process of formation and emulates the experience of the dense historical center of Cordoba.
The vertical fractures that are introduced in the building mass create patios, relating the local courtyard typologies. These fractures provide natural light and ventilation in the central zones of the large building.
One can say that the sustainability of the building is not achieved by expensive technological mechanisms but by an intelligent interpretation of the vernacular architecture.
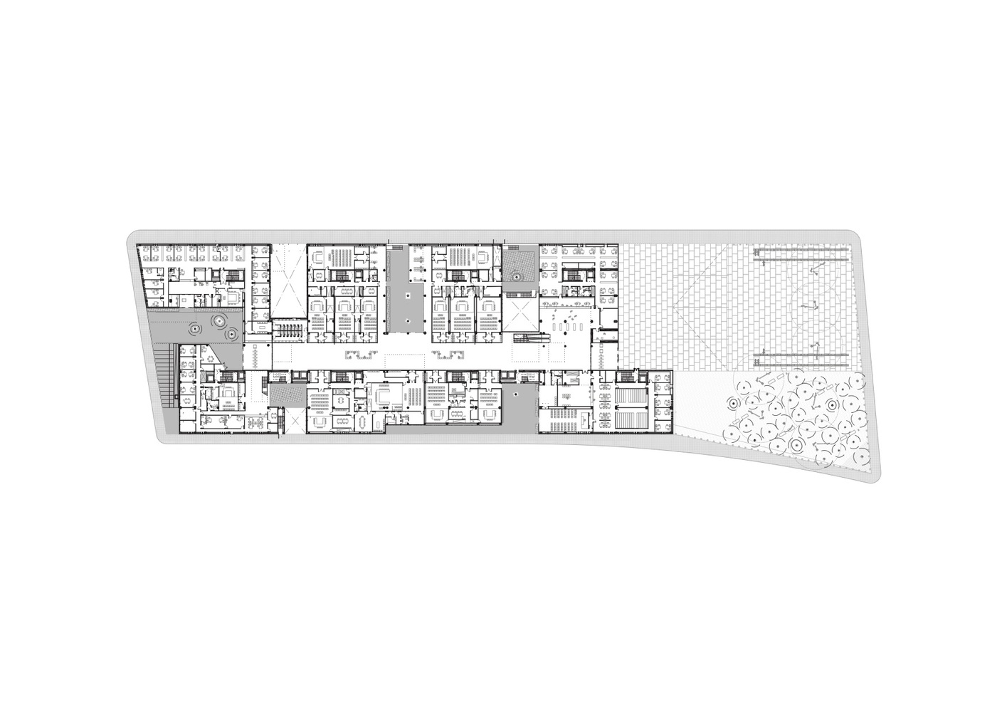
The building is elevated two meters from the street level and is accessed by the sloping entrance square. This elevation gives a symbolic power to the building while solving problems of privacy and security created by the insertion of semi-open patios.
Since the Palace is divided into several independent departments, the building requires several entrances that are positioned based on both internal and external hierarchies.
You can access the building either from the main entrance square or smaller open patios carefully placed along the other 3 sides of the building.
From the main entrance, the interior organization is easily recognizable. A central spine creates a circulation axis which connects to the various the programs of the building.
This space spans through several floors across the length of the building and articulates each department. It also links the public circulation with the exterior patios.
The spine echoes the architectural language of the exterior massing, with multi-level day-lit voids creating sculptural atriums throughout the building. The internal functions become more private higher up the building.
At the level of the square, the courthouse features an open ground floor that contains the most public sections such as courtrooms, marriage registry and restaurant. High security offices are situated off the upper courtyards and the archives and jail cells are found below ground level.





































