
Museum Rüsselsheim
LOCATION
Rüsselsheim, Germany
CATEGORY
Museum, Adaptive Reuse
Text description provided by architect.
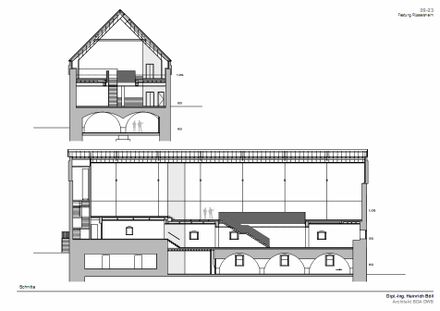
The restored remains of the Rüsselsheim Fortress have become the new home of the city's municipal museum.
A new staircase leads the visitors to the upper floor where they reach the main exhibition room. A newly added rooflight supplies ample daylight.
Next to the historic natural stone masonry we added an oak floor.
Furthermore, we kept new structural elements in a simplistic white, while using dark gray painted steel for technical additions such as the elevator, doors and the main staircase.

The architectural design makes the old house a perfect host for the new exhibition.



T +49 201 836380 F +49 201 8363870
Böll Architekten GmbH
Max-Fiedler-Str. 6, 45128 Essen, Germany











