
LaSalle Waterworks Building
ARCHITECTS
Affleck De La Riva Architects
AREA
450 m²
LOCATION
Montreal, canada
CATEGORY
Infrastructure, Institutional Buildings, Renovation
PHOTOGRAPHS
Marc Cramer, Alexandre Chabot, Affleck de la Riva
YEAR
2012
CIVIL, STRUCTURAL, MECHANICAL AND ELECTRICAL ENGINEERS
AXOR Experts Conseils
BUDGET
5 100 000 $CA
CLIENT
City of Montreal
LANDSCAPE ARCHITECT
Cima + (Alain Bourassa)
Text description provided by architect.
The history of civilisations and cities are intrinsically tied to the presence of water. Ancient civilisations grew up in fertile river valleys and the development of cities depended on the ready availability of water for both potable use and public sanitation.
The infrastructure used to control and distribute water in the urban environment has a long and distinguished architectural history.
The Lasalle Waterworks Building is located on the banks of the Saint Lawrence River at the entrance of the Montreal Aqueduct, the source of the city’s drinking water.
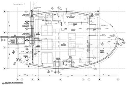
Sited in a broad waterfront park, the project includes three structures – a historic Spanish Colonial pump-house dating from 1923, a 1975 addition to this structure, and a new addition housing an air-filtering device.
Using an integrated landscape strategy to create links between these disparate components, the project engages the waterfront park as a comprehensive whole.
An elliptical berm composed of excavation material is superimposed around all three structures to create a conceptual cradle for the scheme.
Secondary elliptical pods organise existing landscape features including two groves of mature trees.
The new addition, located at the center of the berm, also assumes an elliptical form – in this case an extruded ellipse that permits the development of the new program beneath a green roof.
The restoration and renovation of the first two structures consolidates the material palette of the Spanish Colonial pump house – white stucco and terra-cotta roofs – and the extruded ellipse of the new addition, in textured red brick, picks up on the terracotta roof of the 1923 structure.The project’s emphasis on the landscape as a unifying medium has important technical dimensions.
The project is a LEED certified initiative that uses indigenous plants, natural collection and treatment of surface water and various green energy strategies including geothermal heating and photovoltaic solar collectors.
The project was a finalist for an Award of excellence from the Order of Architects of Quebec in 2013.

















