Chauveau – 26 Social Dwellings
ARCHITECTS
ODILE+GUZY architectes
AREA
3706 m²
LOCATION
Chalon-sur-saône, France
CATEGORY
Social Housing
YEAR
2017
PHOTOGRAPHS
David Foessel
CONSULTANTS
BETREC Engineers + building-site pilot, Sophie Barbaux - landscape architect,.
CLIENT
OPAC Saône et Loire
MANUFACTURERS
Jannet Hubert, Pernin et Fil, Pernin et Fils
Text description provided by architect.
Located in Chalon-sur-Saône, the Bellevue district consists of a variety of building typologies typical to that of a city’s suburbs. Situated on an enclosed site and set back from the street, this project responses to its surrounding environment and to the design brief that imposed a timber construction solution.
A set of fragmented intermediate housing (20 dwellings) and a row of terraced houses (6 dwellings) are arranged around a central planted alley leaving space for vegetation and outdoor spaces.
Genesis of the project
The design competition launched by OPAC 71 initially envisaged the construction of two distinct buildings of 3 to 4 floors and collective dwellings. To make the most of the site, we proposed to put as much emphasis on voids as on solids and offer lower scale typologies.
The project is thus built around alternating free functional spaces and built volumes depending on the qualities and constraints of the site.
From the street entrance to the northern site limit, entrance, outdoor parking, intermediate housing, alley, gardens and individual houses, creates an urban sequence that matches the scale of the neighboring buildings.
Designing voids
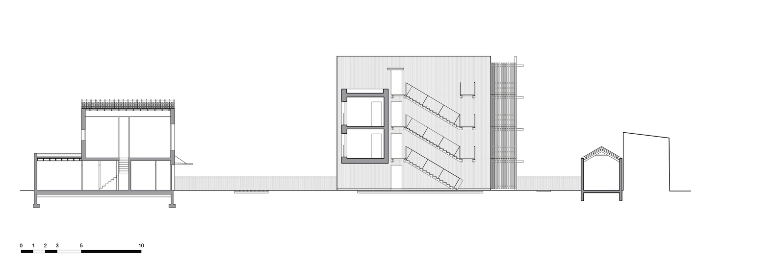
The fragmented volumes of the intermediate housing create a filter between the parking and the central alley. The voids help create sequences prolonged through the footbridges and external staircases offering remarkable frames towards the city.
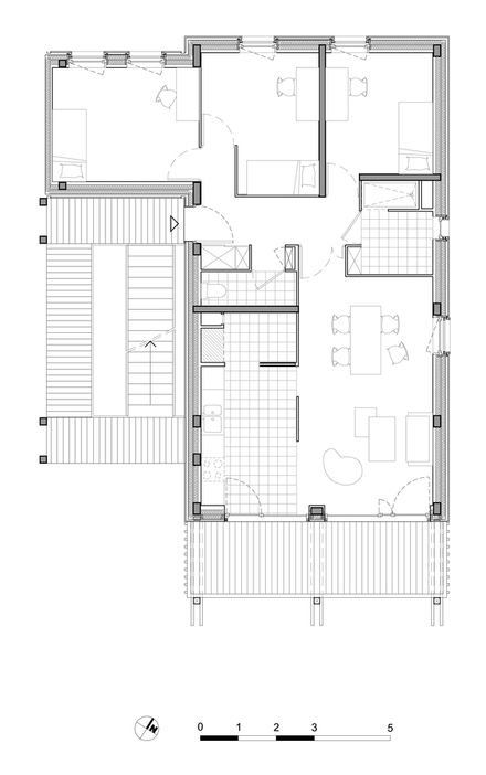
Intermediate dwellings create a dialogue between the street and the row of individual housing behind. The interior layout allows for a diversity of typologies with unobstructed views towards the exterior.
The built volumes are clad in vertical wooden. This play of vibration extends along the terraces through separation screens ensuring solar and visual protection to each dwelling.
The quality of the outdoor spaces, an essential component of the project, leave a large place to evergreen vegetation.
The birch trees will introduce a slender silhouette creating a dialogue with the built volumes.
A paved central alley allows access to the row of houses. Each house has its own a private garden behind purple haze hedges. A wooden lattice awning protects the south facing living rooms from solar gain.To the back of the houses, the alternating volumes of kitchen and patio ensure the articulation with the existing urban fabric.
Particular attention has been paid to the fifth façade. The tiled roofs of the houses create a colorful landscape to overlooking housing.Contrasting voluntarily with the monotone facades of the surrounding dwellings, it recalls the characteristic pattern of historic buildings in Burgundy.
Dwell
Each of the dwellings are double oriented, bathrooms and kitchens have been placed along the façade and benefit from direct natural light and ventilation.
Entrances are placed in order to maximize space for the living areas. The kitchen and living rooms are extended by generous gardens, patios or balconies according to each typology. Spread common areas, paths, external staircases, allow a wide variety of uses, practices and social interactions.
Constructive principles
Using a cost-effective wood construction method was a priority. The structure, wooden posts, concrete floor slab and wooden façade framework meet the normative requirements in an economical way while eliminating intermediate support elements inside the housings to guarantee the flexibility of the spaces. This simple solution is made possible by the rationality of the plans and a rigorous superposition of the typologies.
The projects facade is made of thermally modified wood spruce to ensure a harmonious aging of the cladding.
Over the years it will achieve an charcoal grey tint and contrast with the white metal elements of the façades.






























