ARCHITECTS
N2B Arquitetura
CONSTRUCTOR
MVA Construtora
AUTOMATION PROJECT
Kumasa
MANUFACTURERS
Trespa Brasil, Blue Sol, Gail, Weisberg
PRE MOLDED STRUCTURE PROJECT
Marka
PRESSURIZATION AND AIR CONDITIONING PROJECT
Termopress Refrigeração e Projeto de Pressurização Ltda.
METAL STRUCTURE PROJECT
Ferriani
STRUCTURAL DESIGN
Weisberg
AIR CONDITIONING PROJECT
Engelux
HYDRAULIC/ELECTRICAL/FIREFIGHTER PROJECT
Brocanelli
ELECTRICAL/HYDRAULIC DESIGN
B & L Engenharia
ELEVATOR
Villarta
SOLAR ENERGY PROJECT
Blue Sol
LUMINOTECHNICAL PROJECT
Lucenera
PHOTOGRAPHS
Fran Parente
AREA
3516 m²
YEAR
2016
LOCATION
Jardim Nova Alianca Sul, Brazil
CATEGROY
Exhibition Center
Text description provided by architect.
A garage created from the principle that confers to the yearning of a collector: contemplation.
Designed to meet expectations regarding storage, exhibition, and maintenance of a collection of motorcycles and classic cars that were selected over almost three decades, among them unique cars in South America.
In this way, the architectural solutions for accessibility and spatiality adopted for building design, prioritize to meet all the needs of this valuable collection.
The accesses are located on several faces of the building, so that the vehicles can transit through the route without difficulty, even from one floor to the other.
In the center of the building, the atrium is structured in a complex metal structure, where a car lift with a capacity of 3 tons is leased, allowing an easy movement of the collection to all 3 floors of the building.
Next to the elevator box is the main access staircase of the floors, also in metallic structure.
The central atrium allows the entrance of controlled light and transparency between the floors.
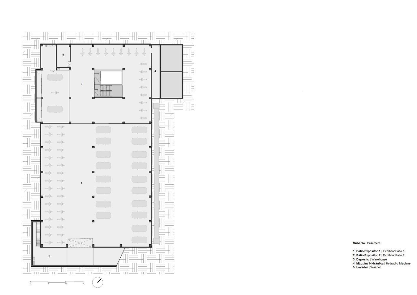
Unlike the other floors, the subsoil has the minimum of light and external air exchange possible, making it more watertight and naturally cooled, an environment conducive to the conservation of the collection.
On the ground floor are the workshops and the main exhibition yard, this one with a vain of impressive 30 meters in length and 9 meters high in height, executed in a prefabricated structure.
In this same structure, the metal catwalk where the main motorcycles of the collection are exposed is fixed.
In the outer area, a grid was created for the protection and privacy of the building, which also allows maximum opening, created for the purpose of attending events of the branch and occasionally used as a helipad.
Under this slope was installed a reservoir of 70,000 liters of rainwater that is captured by the roof, responsible for supplying toilets, taps of the mechanical workshop and irrigation of the garden.
In addition to this rainwater harvesting, the roof houses a large solar energy system with more than 160 photovoltaic panels with the capacity to generate enough energy to make the building fully self-sufficient.
The building has a complex air conditioning system integrated with smoke exhaustion equipment that meets the fire department's specifications and also maintains positive internal pressure on days of a dust storm, keeping the collection clean.
In the part of the mechanical workshop, all sinks and drains were designed with a system that separates the oil, storing it in an isolated place and preventing that waste is discarded in an inadequate way.
The building was designed with the best and most current techniques available in the market, respecting the function of the object above all else.
























































