ARCHITECTS
Studio Toggle
CATEGORY
Houses, Sustainability
LOCATION
Al-bidea, Kuwait
AREA
2841 m²
MANUFACTURERS
Graphisoft SE, JNF, Profilati EKU Perfection, Wipro
LEAD ARCHITECTS
Studio Toggle
YEAR
2020
PHOTOGRAPHS
Gijo Paul George
DESIGN TEAM
Hend Almatrouk, Gijo Paul George, Mani Kuruvila, Abdul Rashid, Dionne Pereira, Ashlon Frank
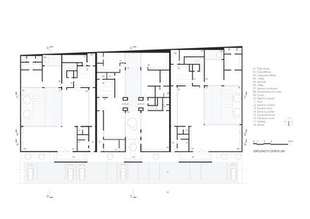
Ternion is a composition of three independent villas in Kuwait. Variably stacked prismatic volumes create a porous-pixellated massing achieving a harmonious balance between the opposing ideals of privacy and community.
The project encouraged the architects to rethink the modern suburban Arab residential block, usually populated with affluent independent villas.
In a society where privacy and weather become the overriding design directives, the norm in residential architecture is to create impenetrable and introverted structures that maximize the climate-controlled built-up area.The brief dictated the creation of three independent villas with private gardens and private swimming pools, that can be used on a year-round basis.
While it could not be completely avoided, the architects sought to minimize the use of active climate control by employing passive cooling techniques traditionally part of the vernacular.
Combining these with self-shading massing strategies gave the project the direction it needed both spatially and aesthetically.
Each villa is centered around a private courtyard featuring a swimming pool as a modern functional interpretation of a traditional 'Hosh' with a water feature.
The social spaces are grouped around this pool and feature longitudinal full-height glazed windows facilitating cross ventilation and evaporative cooling when open.
The glazed internal walls afford panoramic views to the garden and pools while shaded from the scorching sun by cantilevered volumes mitigating the heat gain.
This results in a composition of variably stacked prismatic volumes creating a pixelated / porous massing that endeavors to achieve a harmonious balance between the opposing ideals of privacy and community.
The architecture of the three villas is to be read as a whole, composed of a series of hierarchical social spaces, organized based on their varying degrees of openness and privacy.
These range from fully enclosed, private, and silent gardens to vast terraces, opening up to the streetscape and the vistas beyond.The inhabitable volumes are organized around these social spaces, defined by their function and need for transparency.
These monolithic volumes, by virtue of their compositions, act as frames, shields or cantilevers, providing shade from the sun, protection from the desert wind, and frames the endless views towards the sea from multiple vantage points.
Usable terraces, covered porticos, hidden nooks, viewing platforms are all part of a selection of multi-use spaces generated by modulating the massing.
The expressive volumes of the three villas reach out to each other creating a streamlined street interface, thereby forging a unified identity for the development.
Ternion, thus, is an experiment in modern Arabic residential architecture, that respects the privacy and exclusivity dictated by the social norms without compromising on the joys of community.
































