Silo Erlenmatt Renovation
ARCHITECTS
Harry Gugger Studio
EMP ENGINEER
Gartenmann Eng. Ag Building Technology: Waldhauser + Hermann Ag
DESIGN TEAM
Harry Gugger, Michael Zink, Gonzalo Ampudia, Mengjie Cheng, Franziska Cherdron, Thomas Domenger, Sara Jardim, Furio Montoli, Gunnar Stachmann, Vera Hollek, Rachel Testard, Gregory Then, Jan Wiedmer
ELECTRICAL ENGINEER
Edeco Ag
FIRE PROTECTION
Quantum Brandschutz
FACADE PLANNER
PPEngineering Gmbh
SANITARY ENGINEER
Gemperle Kussmann
PROJECT MANAGMENT
Eitel & Partner GmbH
STRUCTURAL ENGINEER
Schnetzer Puskas Ag
MANUFACTURERS
Feller AG, Glutz, Nemetschek, Adobe, Fixit, McNeel, Thymos, Ytong, Zehnder Group Schweiz
PHOTOGRAPHS
Lukas Schwabenbauer ,Christian Kahl, Marc Gilgen, Leon Faust
AREA
2690 m²
YEAR
2020
LOCATION
Basel, Switzerland
CATEGORY
Office Buildings
On the Erlenmatt Ost site in the north of Kleinbasel a new urban quarter is developing.
At its heart sits an abandoned silo, built in 1912 for the Basler Grain and Cacao Beans Dry Storage Company which is now converted into a multi-faceted venue for the wider local community.
Based on the ideas of Stiftung Habitat Foundation and Talent Verein, a socio-cultural offer of different uses is to be created, which is accessible and can be experienced by everyone.
This includes ateliers and studios as an affordable space for cultural workers, service providers and young businessmen, as well as a hostel and a restaurant at the heart of the project. The overall aim is to create and promote diversity.
The originally free-standing silo building is now integrated into a row of buildings along the Signalstrasse.
Its neighbours are a house for students and a residential and work building for artists.
Noise pollution from the adjacent motorway, high sustainability goals, and the internal spatial organisation characterise the project.
As one of the first steel-reinforced concrete structures in Switzerland and with a unique inner industrial condition defined by a vertical division of spaces, our aim was to preserve and celebrate the genius loci.
Throughout the design process, the building’s inner structure was always taken into account.
Safeguarding as much as possible of the existing fabric of the building and keeping disruptive interventions to a minimum. For this reason, the characteristic silo chambers have been preserved.
They give to the building and to its new use a familiar scale. The new functions are achieved by the installation of only two new floor slabs and distribution cores.
Porthole-like windows now provide ventilation, daylight, and a view to the outside without affecting the original tectonics of the façade.
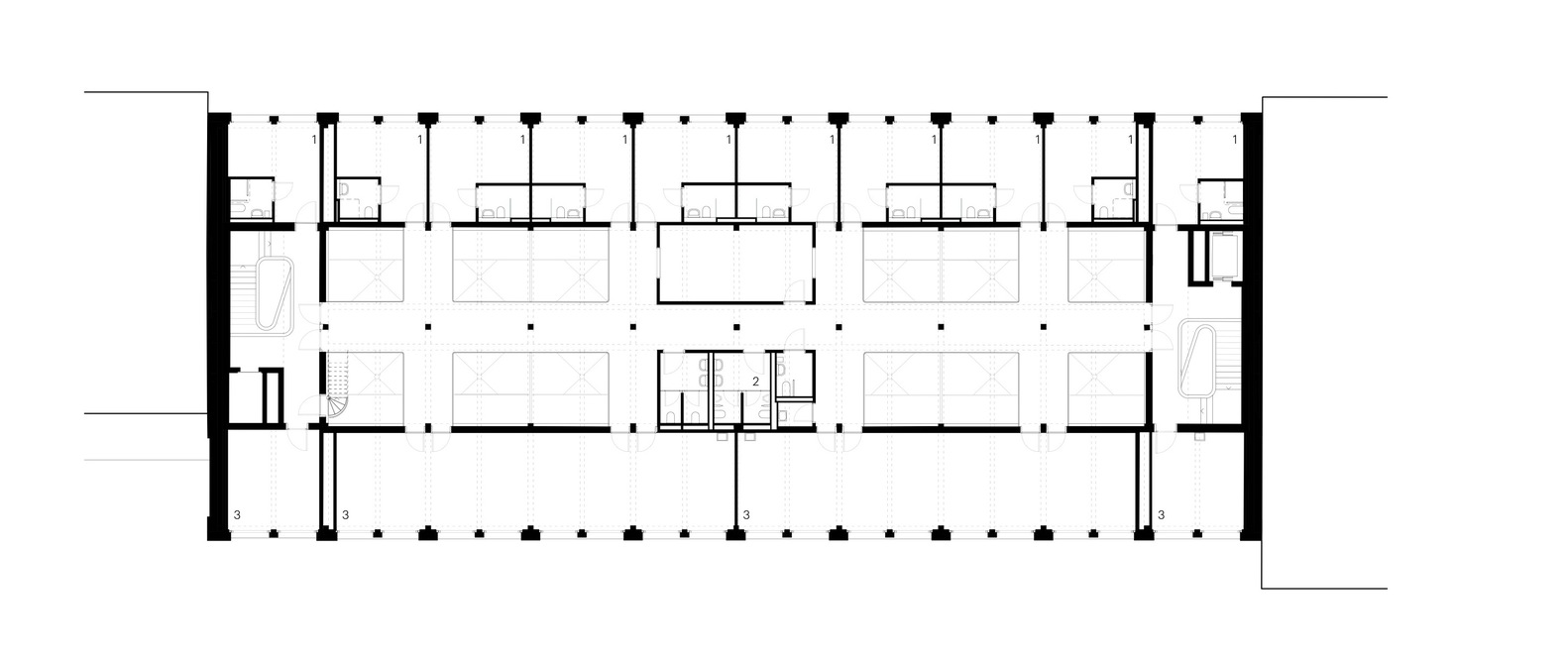
The guest rooms of the hostel are located on the 1st and upper floor on the street side. On the courtyard side towards the southwest, the studios are located on the 1st and upper floor.
On the ground floor, the seminar rooms face the street and the restaurant opens up to the public courtyard with an outdoor seating area with catering.











































