ARCHITECTS
Takeshi Ishiodori Architecture
MANUFACTURERS
Nissin-EX, Sanwa Company, Toray, VECTOR WORKS 2019
YEAR
2020
LOCATION
Miyazaki, Japan
CATEGORY
Houses
Client liked the blue sea and sky from her parents' house in this place. A small forest can be seen on the south side.
When I thought about a sunny living room with a view of this scenery, many bent plans appeared.
The overlap siding that is used on the outer wall and the unevenness that bends along the ground look like a caterpillar.
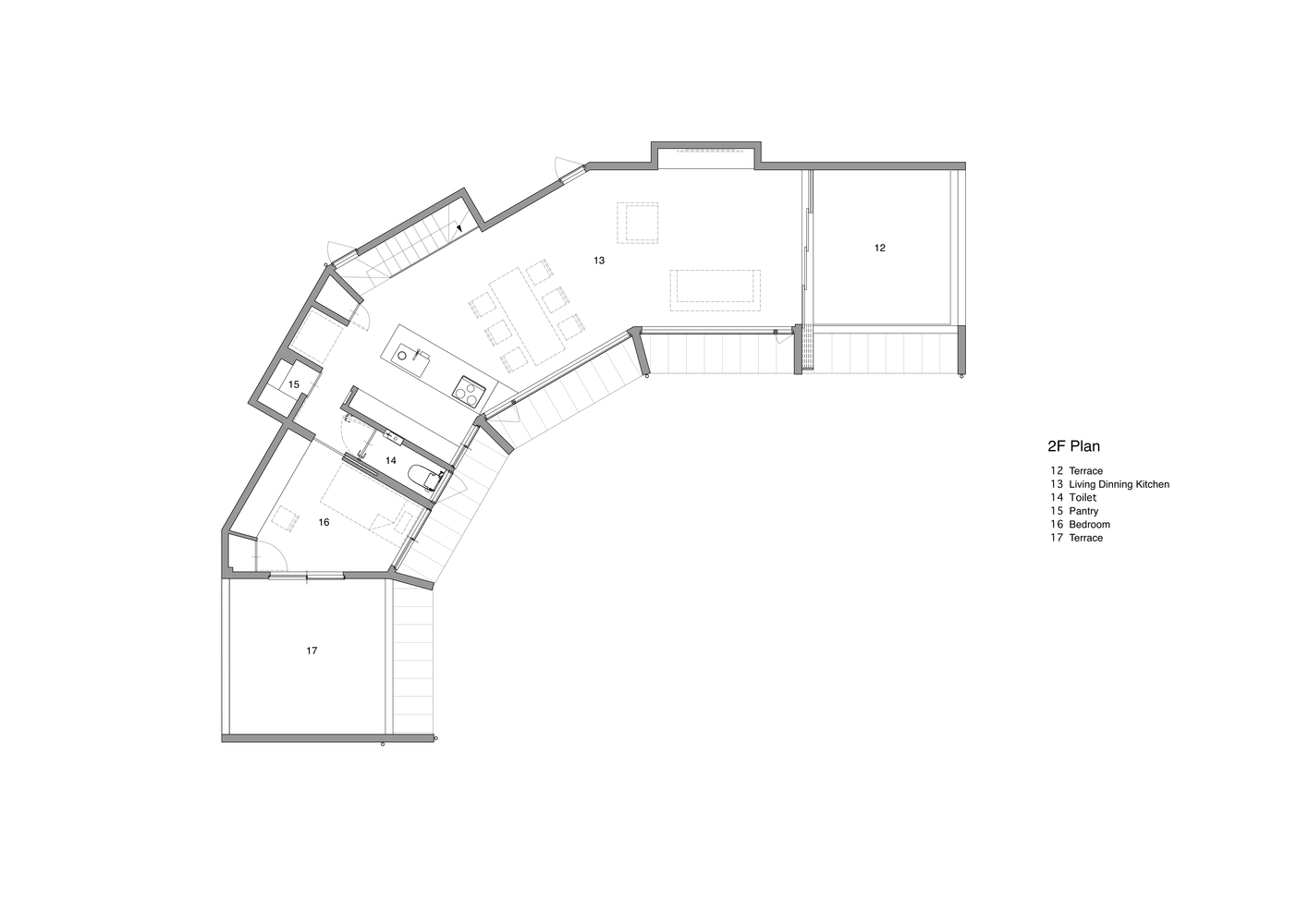
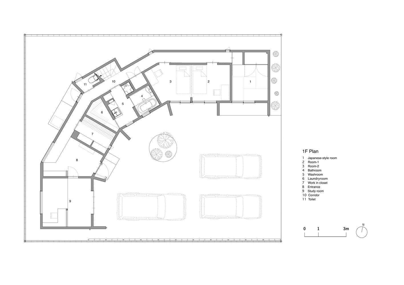
A bright and open living room spreads out when going up to the second floor through the dark and long corridor on the first floor.
By putting crazy paving on the wall that connects the living room to the terrace, and by fully opening the wooden sliding windows between the terrace and living room to create an integrated space for the indoor and outdoor areas, the blue sky and sea that penetrates forever can be seen. You can feel deeply.
The study room on the 1st floor is open on sunny days with a large sliding door that makes it easy for multi-hobby client to do whatever they want.
The space is as simple as possible due to the complicated structure that is bent in many ways. By making the first and second floors the same volume, it has a neat appearance.
With the interior and planting carefully selected by the client, the caterpillar became a subtropical butterfly.



















