CATEGORY
Houses
LOCATION
Puerto Varas, Chile
AREA
308 m²
PHOTOGRAPHS
Nico Saieh
ARCHITECTS
Pe+Br+Re arquitectos
YEAR
2016
MANUFACTURERS
Hansgrohe, AB Kupfer, Comercial Arratia, Duomo
COLLABORATOR
Rodrigo Pezzuto, Pablo Amigo
CONSTRUCTION
Constructora Velarco, Juan Velasquez
This house is located in Puerto Varas, on a plot that used to be an agricultural field.
This places the house around a large native and non-native trees and an old countryside roads. This view coincides with the solar orientation towards the north.
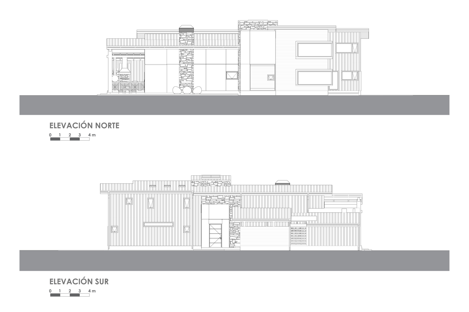
Formally speaking, the house is designed from a large main volume with two main facades, the south and the north, facades that according to its character determines its expression in terms of composition, light and materiality.
To the south a more private facade is defined towards the parking area with a clear window access. This controls the loss of privacy and temperature of the facade exposed to the street, the cold face of the house.
The north face of the house is a large window facade in the common areas creating a strong connection between the view, the landscape and the interior of the house, maximizing the sunlight and view.
This large volume is crossed by a transverse roof that contains the service areas and complementary spaces, giving way to the access of the house.
From this point the house is divided in two areas: dormitory and private use to the west and common areas towards the east, finishing the common areas in a great indoor/outdoor space intimately related to the great trees and the surroundings.
The result of all this is that domestic use, passive solar orientation, the connection with the landscape, materiality and structure are all consequent, work together to generate a virtuous circle between all the variables giving the house a natural and efficient habitability without it being forced or mechanized.















