
Ikc De Geluksvogel
ARCHITECTS
UArchitects
CONSTRUCTION CONSULTANT
Castermans
HVAC CONSULTANT
K+ adviesgroep
ENVIRONMENT CONSULTANT
CNME
MANUFACTURERS
Accoya, Bolidt, Forbo Flooring Systems, Multiwal, Vandersanden
CONSULTANT
ZRi
ARCHITECT IN CHARGE
Misak Terzibasiyan
CONTRACTOR
BMV
PHOTOGRAPHS
Daan Dijkmeijer and UArchitects
AREA
2100 m²
YEAR
2017
LOCATION
Maastricht, The Netherlands
CATEGORY
Schools
Text description provided by architect.
This a unique sustainable and digital school in the Netherlands.
Two existing schools in two neighbouring locations in Maastricht are merging into a new school on a new location in that city.
This particular location was chosen to strengthen the weak social structure of the two neighbourhoods and to introduce a new digital education system to learn also more about the environment, nature and sustainability.
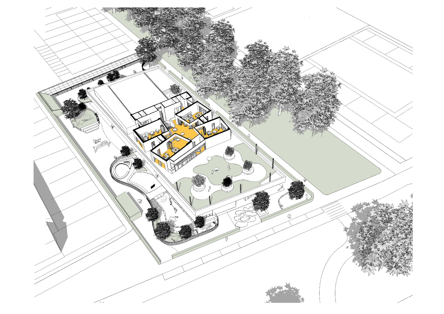
Even the playground outside has different zones to help children (re)discover nature and explore their world by means of experiments or to build and test objects.
The digital way of teaching is for the most part paperless (virtual), which is represented in the architecture of the building.
It shows a brick element with random messages in binary code (1 and 0) on the façade, as a reflection of this digitalized education system and the virtual reality in which we live today.
The façade acts as the messenger of our digital world. Not in a direct, obvious way but more indirect, by the irregular placing of the bricks in patterns.
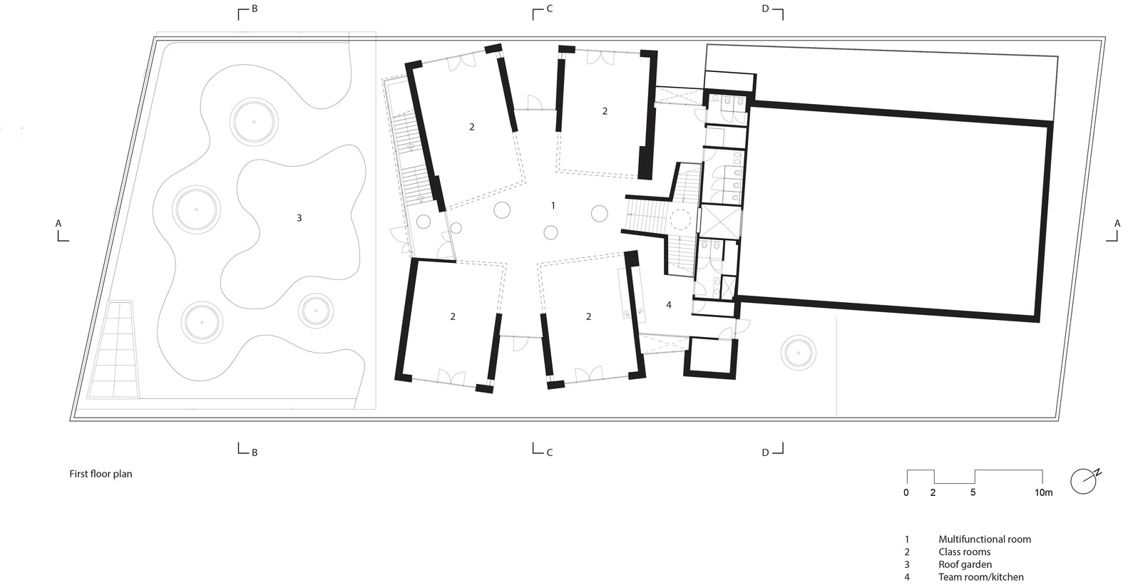
This is a school that holds a kindergarten, a primary school, a gym and a library. A school with different types of users that work closely together to combine environmental and digital teaching to reach a new level of education.
The concept of environmental teaching can be found on different levels, from virtual reality to the building itself, making it the green and modern digital school.
Both the school and the building are not designed around a classically organized educational system but around the concept of free movement and free use of spaces.
We used the concept of a flock of birds to predict the movement of the users (children) through the building, which is how we designed the various spaces in the school.
The educational space in the school is not limited to the classrooms but can continue in different open spaces with a different purpose.
This open plan will encourage the free flow between and use of the spaces; education will not be limited by walls or doors. It even continues outside to the playground and the terraces on the first floor.





























