Street Canvas
ARCHITECTS
TA Architect
CONSTRUCTION
Green’s Field
CLIENT
Shih Chia Yi
ARCHITECT IN CHARGE
Tung Yuh Kuan
PHOTOGRAPHS
Tung Yuh Kuan
AREA
298 m²
YEAR
2012
LOCATION
Taiwan (Roc)
CATEGORY
Houses
Text description provided by architect.
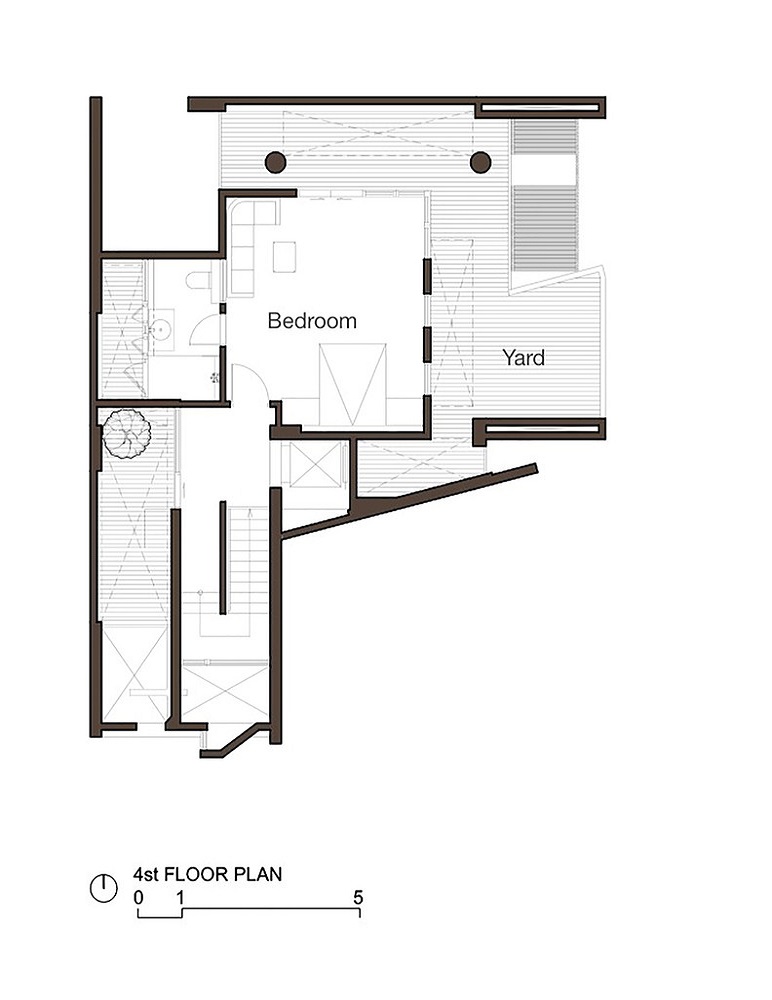
Case is located in Tainan (southern Taiwan) and situated in an alley around the corner.
On the south side adjacent to the existing building, on the north side across the roadway is facing the old apartment. We used three design strategies.
First, the capture.
Old apartment building has an expression with emotion, but the presence of complex and unknowable usage behavior Meanwhile.
In order to achieve balance between the two, we have the case of the appearance as canvas, through tailor-like approach to capture the building emotion with straight, horizontal elongated rectangular or the round hole .
On the contrary, use the white and more blank walls in order to leave and block the complex behavior out there.
Second, the implantation of light.
Case should be interesting because of the implant the north side, east side, and south side of the light wells.
We hope to introduce the morning light from the east side over the second floor to reach the first floor dining space. The mixing between sunlight and Breakfast, it should be delicious with the dawn.
Third, the airflow.
Most of the house is used as layers separated. This also brings stagnant airflow. We let the airflow to link two or three layers with a simple principle of heat rises, the flow of air is simultaneously introduced into the inter-layer and is used to achieve the family relationship.
































