Graphic Inputs Logistics Center
ARCHITECTS
Serie Architects, Multiply Architects, Federico Marinaro Arquitecto
COLLABORATORS
Manuel Giró architect, Bruno Turri architect, Lucía Antuña architect
ADVISOR
Engineer Luciano López
YEAR
2016
LOCATION
Rosario, Argentina
CATEGORY
Institutional Buildings
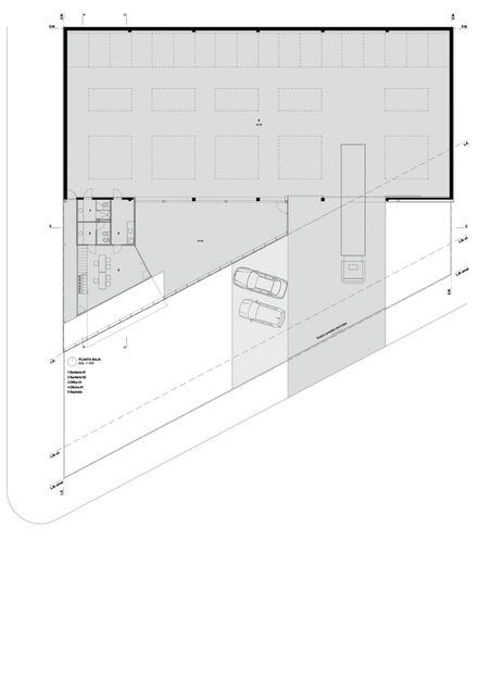
The work proposes a very simple operation, the addition of a volume resulting from the exploitation to the maximum of the usable soil after the application of the obligatory withdrawals and of the excess floor of the existing shed (shed).
CONTEXT
It is located on a fast vehicular traffic corridor (Juan Domingo Perón) that crosses the city of Rosario in the SO-NE direction, this route is the continuation of the national route 33 and very close to Av.
De Circunvalación, which, until About 10 years ago it worked as a peripheral ring to the city but due to the growth of the great Rosary to the South and the West, it became a seam of this new configuration.
The neighborhood is predominantly residential use of low-density housing, industries, large businesses, and warehouses. The plot located on the corner has a trapezoid rectangle geometry to which a mandatory 10-meter withdrawal on the municipal line on Juan Domingo Perón Avenue was to be applied.
MATERIALITY
Exterior closure. For the external closures, pre-painted corrugated sheets with a microperforated gray ash color were used.
The offices on the upper floor are visually turned towards the outside by means of laminated glass 5 + 5mm which in turn reflect the immediate landscape and allow to observe the materialization of the interior.
Interiors The volume that makes up the program of offices, reception, changing rooms and meeting room is made of phenolic wood of 18 mm of eucalyptus.
LINKS
One of the initial intentions of the project was how to generate physical and perceptual visuals from inside the work to the inside of the work, from the inside to the outside and from the outside to the inside.Different material and technical resources were used to obtain these different visual and physical disabilities.
At the urban basement level, they used grooved microperforated sheets allowing the interior-exterior visual and continuous air flow, in the administration sector is behind this filter at 2m separated by carpentry generating a closed enclosure.
The links are generated with immediate and near visuals on the ground floor where the deposit and administration are located and with extensive visuals to the territory on the upper floor where the offices and meeting room are located.
INVESTIGATION
The work was conceived as an object that links and generates a link between the blocks adjacent to it, thinking as a vehicle of union between both urban situations.
Tectonically an attempt was made to generate a piece that is perceptually seen from the outside as solid, closed and compact and from the inside to the open, flowing, illuminated and warm exterior.





















