
Ronald McDonald Family Room
ARCHITECTS
EGM Architecten
YEAR
2011
CATEGORY
Hospital
PHOTOGRAPHS
Courtesy Of Egm Architecten
LOCATION
Dordrecht, The Netherlands
Text description provided by architect.
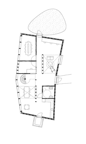
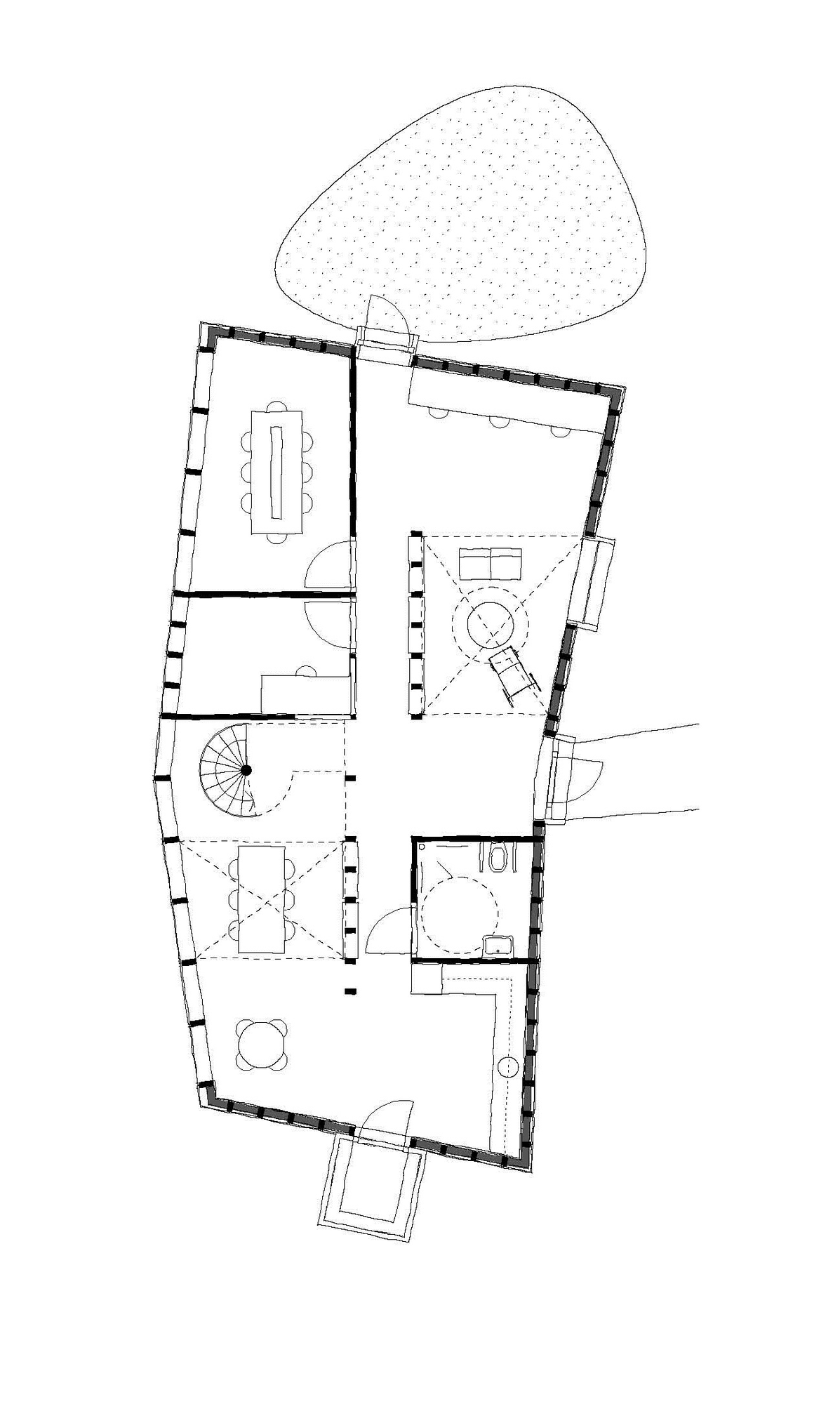
The Ronald McDonald Family Room in Utrecht is located on the roof of the Wilhelmina Children's Hospital entrance hall. The Family Room is a place where parents and siblings of young patients can withdraw from the realities of the medical world.
The design was put together with the desire to temporarily escape the hospital environment. This is easily accomplished upon entering the 'tree house': a freestanding house in the classic design.
A house with a pointy roof, as if a child drew it. The tree house owes its special slanted form to the fact that it is positioned precisely above the forest of columns in the main hall just underneath.
Where the little house is positioned close to the hospital, the facade provides protection and is finished in tints of warm grey and orange.
The northern façade is fully constructed in glass and mounted in sturdy wooden frames, overlooking the hospital’s courtyard.
Even the interior has surprisingly contrasting combinations with lofty heights and inviting corners. Open walls of wooden columns alternate between providing a good hiding space or simply a bit of transparency.
Because of the wooden interior, the tree house’s atmosphere is warm, friendly and personal.
Furthermore, the white acoustic ceiling absorbs sound and literally provides rest. Simply put, the Ronald McDonald Living Room makes a major contribution to a pleasant hospital stay.















