Z House in Spain
ARCHITECTS
nred arquitectos
LOCATION
Spain
CATEGORY
Houses
AREA
850 m²
YEAR
2011
Text description provided by architect.
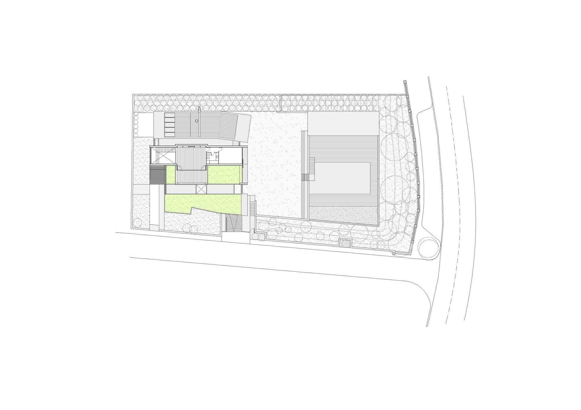
The topography and slope force the site into a two-terrace configuration. At the lower terrace the swimming pool and the sheltered deck are both dug into the ground and separated from the road by a slope covered in dense vegetation.
Above, the house rests on the ground like a folded sheet of paper, like a zigzag. It´s construction is closer to a water reservoir or agricultural terracing rather than a residential structure.
The house is a frame that contracts and expands…theoretically infinite…an isotropic structure cut by a determined contour, roughly rectangular…parallel ribbons of different heights…free composition, matted with small gardens…the house resembles a curtain that rises and falls repeatedly.
The zig-zag cut defines the façade which is only closed by glass and latticework: wooden in the ventilation openings and concrete in the patios.
The interior is an overlap or juxtaposition of the spaces that are the result of these foldings. Tubular spaces, lineal, lit only by one of its ends openings.
The exterior penetrates into the house by the many scattered patios and the extreme simplicity of the tubular spaces that end completely glazed and frame the surrounding views.


















