
Las Torres
LOCATION
Cuautitlán Izcalli, Mexico
CATEGORY
Housing
Text description provided by architect.
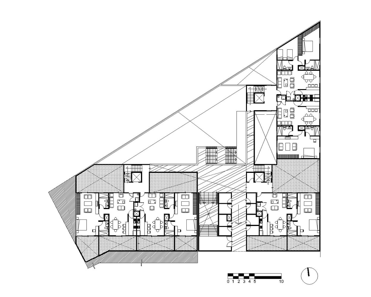
Las Torres is a low income housing development consisting of 50 apartments and 10 houses, found in Cuautitlan Izcalli, on the northern outskirts of Mexico City.
The main concept of the project is to connect the building with the existing landscape of "tepetate". This beautiful material is found all along the site and nearby hills, and has a strong but noble physical quality that was worth conserving and respecting.
This concept goes in the opposite direction of conventional urbanising strategies, where modernity places itself on top of it all, forgetting and erasing its connection with the natural landscape.
The project sits in a 3,112.72 sq m triangular site, and includes three towers holding all the apartments.
A single block holding all the houses, a main courtyard, a back courtyard, both a covered and open parking space holding 120 cars, and two separate entrances with security checkpoints.
Each of the 10 houses has a built area of 115 sq m, with two floors that include: a small portico, a private patio, open kitchen, living/dining room, small laundry, 2.5 bathrooms and 3 bedrooms.
The spaces inside were designed to be as spacious and well lighted as possible, that's why each house has two skylights and no nonsense room divisions.
The main bedroom includes a big floated flowerpot outside the window, giving a sense of privacy and an extra touch of nature.
The apartments have a built area of 92 sq m, and include: kitchen, dining/living room, two bathrooms, and the option to choose between two or three bedrooms.
All the apartments on the ground floor have spacious private patios for the kitchen, living/dining room and one of the bedrooms.
Again, the space inside is as spacious as possible, with good natural lighting, ventilation and views of the surrounding landscape.
There are a few apartments with special configurations that incorporate higher ceilings or small balconies.
The main courtyard works as a pivoting area between the two main towers and the housing block.
It has a big open space and includes a natural "tepetate" wall and 5 enormous pink flower pots, each one housing a small tree and seating area.
Due to the financial restrictions of the project, we considered the simplest possible structural system, with load bearing walls everywhere except on the covered parking space.
The buildings were then covered up either with natural "tepetate", pink or redish stuccos. The whole project was designed as a unified entity that is rooted, that plays around and tries to reach for the sky.
Considering the big chaos and problems of Mexico City, we really hope that the people living in this project can feel a sense of dignity, rooting, connection, spaciousness and playfulness, that can somehow uplift their spirits.














































































